Pest megye, Biatorbágy
 

Ingatlan adatai
Irányár: 160 000 000 Ft
Típus: ház
Kategória: eladó
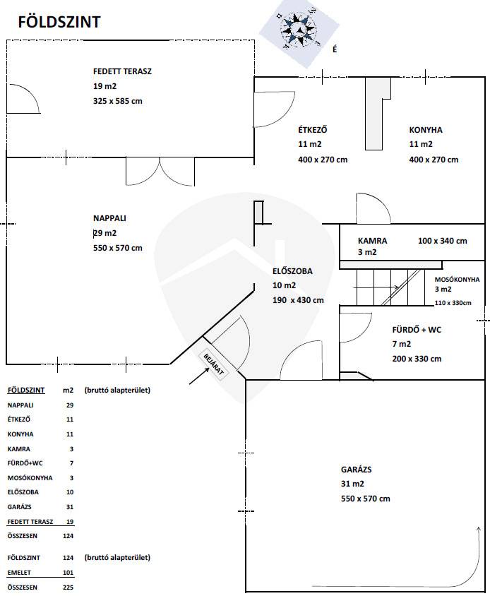
Alapterület: 225 m2
Fűtés: egyéb
Állapota: -
Szobák száma: 5
Építés éve: 2005
Szintek száma: -
Részletes leírás
Biatorbágy Bia városrészében, nyugodt, családbarát környezetben kínálunk megvételre egy önálló, kétszintes, 225 m²-es családi házat, amely egy 453 m²-es, gondozott telken helyezkedik el.Az ingatlan 2005-ben épült, masszív Porotherm 30-as téglából, 5 cm-es hőszigeteléssel, valamint külső kisméretű tégla burkolattal, amely nemcsak tartósságot, hanem egyedi, időtálló megjelenést is biztosít a háznak.A tetőszerkezet jó állapotú, cserépfedéssel ellátott. A fűtésről karbantartott Baxi gázkazán gondoskodik, radiátoros hőleadással, így a ház fenntartása kiszámítható és gazdaságos.Az otthon meleg hangulatát az egyedileg gyártott fa nyílászárók adják, kétrétegű üvegezéssel, jó műszaki állapotban.Elrendezés:Földszint:• Előszoba• Fürdőszoba WC-vel• Tágas, jól használható konyha kamrával, étkezővel• Világos nappali• Az étkezőből és a nappaliból is közvetlen kijárat nyílik a teljesen üvegezett teraszra, amely akár téli kertként is kiválóan funkcionál• A teraszról tolóajtón keresztül elérhető a hátsó udvar• 31 m²-es házkapcsolatos garázsEmelet:• 3 nagyméretű szoba, melyek közül az egyik jelenleg két külön szobára lett osztva• Fürdőszoba WC-velA kert rendezett, automata locsolórendszerrel ellátott, ideális helyszíne családi programoknak, pihenésnek vagy baráti összejöveteleknek.Ez az ingatlan kiváló választás mindazok számára, akik tágas, jól átgondolt elrendezésű, minőségi anyagokból épült otthont keresnek Biatorbágy egyik legkedveltebb részén.? Érdemes személyesen is megtekinteni – ez a ház igazán élhető!
További adatok
Telekterület: 453 m2
Kert mérete: 453 m2
Erkély mérete: 20 m2
Felszereltség: -
Parkolás: -
Kilátás: udvari
Egyéb extrák:  
-
Hirdető adatai
Hirdető neve: Royal Real Estates Powered by RH
Kapcsolattartó: Szabó Balázs
Hirdető telefonszáma: +36 70 412 5713
Honlap: -