Heves megye, Ecséd
 

Ingatlan adatai
Irányár: 59 999 999 Ft
Típus: ház
Kategória: eladó
Alapterület: 119 m2
Fűtés: -
Állapota: új
Szobák száma: 4
Építés éve: 2025
Szintek száma: -
Részletes leírás
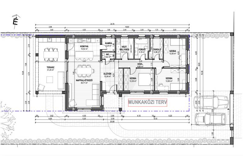
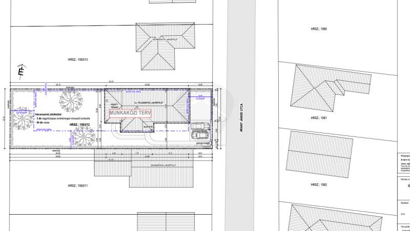
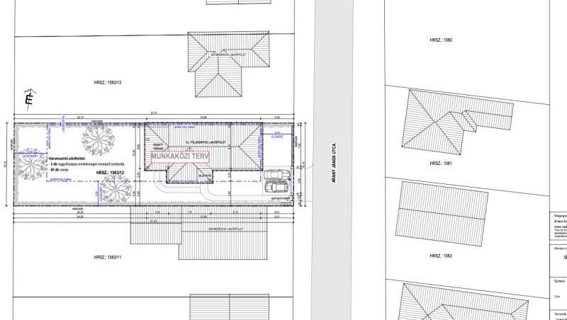
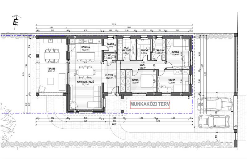
Ecséden, 750 m²-es telken, 119 m²-es új építésű családi ház eladó!Az ingatlan modern elrendezésű: – amerikai konyhás nappali – 3 hálószoba – fürdőszoba – külön WC – háztartási helyiség – teraszA ház energiatakarékos kivitelezésben épül, korszerű hőszivattyús fűtéssel, padlófűtéssel. CSOK Plusz és Otthon Start igénybe vehető!Főbb műszaki jellemzők – 30-as nútféderes tégla falazat – fa födém – antracit betoncserép tetőhéjazat – 15 cm EPS homlokzati szigetelés – 10 cm Austrotherm AT-N100 padlószigetelés – 25 cm ásványgyapot födémszigetelés – 6 légkamrás, 3 rétegű üvegezésű nyílászárók – 10 kW monoblockos hőszivattyú – padlófűtésVálasztható műszaki tartalom (alapárban) – hidegburkolat: 3.000 Ft/m²-ig – melegburkolat: 3.000 Ft/m²-ig – csaptelepek: 15.000 Ft/db-ig – kád vagy zuhany: 40.000 Ft-ig – beltéri ajtók: 35.000 Ft/db-igMagasabb árkategóriás anyagok is választhatók a különbözet finanszírozásával.Elektromos kiépítés – szobák: 3 db konnektor – nappali: 4 db konnektor + internet és kábeltévé kiállás – konyha: 6 db konnektor – világítás: helyiségenként 1 db – kábeltévé előkészítés – riasztó előkészítés – kapumozgató elektronika előkészítésÖsszegzés – Lakótér: 119 m² – Telek: 750 m² – Elosztás: amerikai konyhás nappali + 3 szoba – Terasz – Korszerű hőszivattyús fűtés, padlófűtéssel – CSOK Plusz és Otthon Start igénybe vehető Kérésre teljes tervdokumentáció és részletes műszaki leírás is elérhető.Díjmentes hiteltanácsadás és ügyintézés szintén elérhető nálunk!
További adatok
Telekterület: 750 m2
Kert mérete: 750 m2
Erkély mérete: 31 m2
Felszereltség: -
Parkolás: -
Kilátás: udvari
Egyéb extrák:  
-
Hirdető adatai
Hirdető neve: Intor Ingatlan Powered By RH
Kapcsolattartó: Salétros Dániel
Hirdető telefonszáma: +36 70 412 5816
Honlap: -