Heves megye, Mátraderecske
 

Ingatlan adatai
Irányár: 9 500 000 Ft
Típus: ház
Kategória: eladó
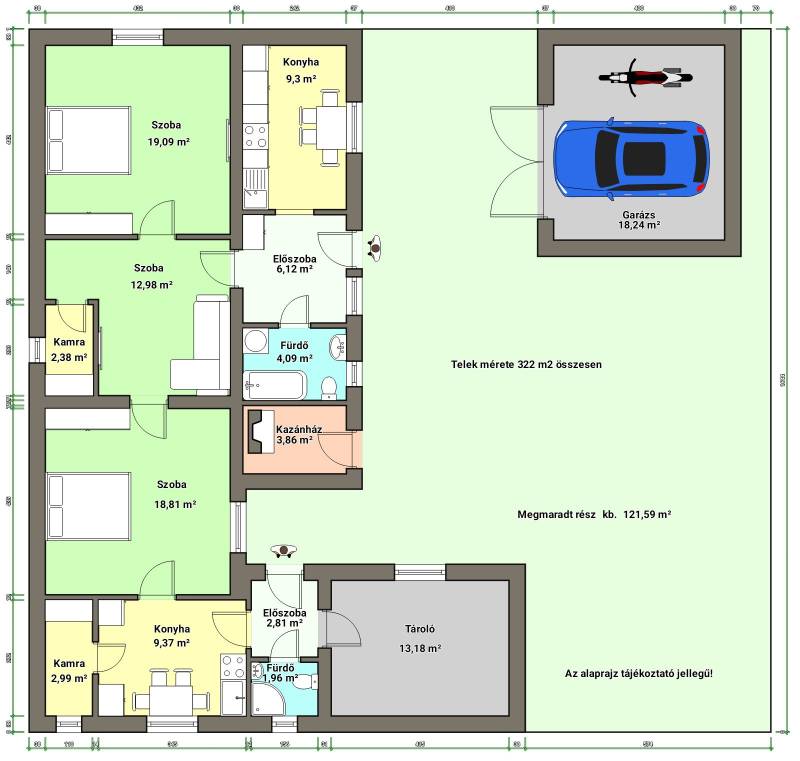
Alapterület: 108 m2
Fűtés: egyéb
Állapota: felújítást igényel
Szobák száma: 3
Építés éve: 1950
Szintek száma: -
Részletes leírás
Egy igazán különleges lehetőség vár rád Mátraderecske szívében, ideális fiatal felnőttek számára, akik saját otthont keresnek, vagy BEFEKTETÉSI céllal szeretnék bővíteni portfóliójukat egy 2 lakásos apartmannal. Heves vármegye, Mátraderecske település központjában kínálok eladásra egy régi típusú, vegyes falazatú (vályog+tégla), FELÚJÍTANDÓ, nettó 108 m2-es családi házat. Nagy ELŐNYE, hogy jelenleg 2 db LAKRÉSZKÉNT üzemel, IGÉNY SZERINT ÁTALAKÍTHATÓ. A fűtésről vegyestüzelésű kazán gondoskodik. Víz, villany, csatorna be van vezetve, a gázcsonk az épület előtt található. A telek mérete PRAKTIKUS, könnyen rendben tartható, hiszen 322 m2-es. Az ingatlan állapota miatt lehetőséged van arra, hogy saját stílusod szerint formáld át, és egy igazán egyedi otthont varázsolj belőle.Egy téglából épült GARÁZS található az utcafronton, viszont jelenleg a kapu elhelyezkedése és a mérete miatt csak egy kisebb autó fér el, de könnyen átalakítható.A KÖZPONT karnyújtásnyira található, hiszen a szomszéd épület a COOP ABC, előtte buszmegálló, 50-100 méteren belül orvosi rendelő és templom, illetve általános iskola is elérhető. Gyógyászati központ 700 méterre található.Mátraderecske környéke kiváló ellátottsággal büszkélkedhet a MÁTRÁNAK köszönhetően, illetve a híres MOFETTA gyógyítás miatt, így a ház vendégek fogadására, APARTMANKÉNT is kiválóan alkalmas. A közeli természetvédelmi területek és a Mátra csodás kirándulóhelyei/túraútvonalai remek lehetőséget kínálnak a szabadidő eltöltésére, legyen szó túrázásról vagy egyszerű pihenésről a természetben.Ha bármilyen kérdésed van, vagy szeretnéd megtekinteni ezt a különleges lehetőséget, bátran keress minket!
További adatok
Telekterület: 322 m2
Kert mérete: 322 m2
Erkély mérete: -
Felszereltség: -
Parkolás: -
Kilátás: utcai
Egyéb extrák:  
-
Hirdető adatai
Hirdető neve: Ingatlanmentor powered by Rock Home
Kapcsolattartó: Horváth Tibor
Hirdető telefonszáma: +36 70 467 6871
Honlap: -