Pest megye, Dömsöd
ÚJ ÉPÍTÉSŰ, TÁROLÓ KAPCSOLATOS IKERHÁZAK 

Ingatlan adatai
Irányár: 58 000 000 Ft
Típus: ház
Kategória: eladó
Alapterület: 80 m2
Fűtés: -
Állapota: új
Szobák száma: 4
Építés éve: 2026
Szintek száma: -
Részletes leírás
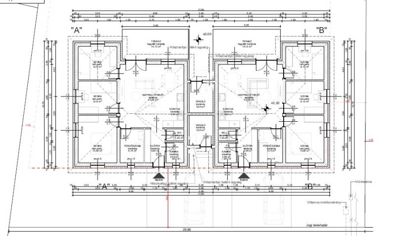
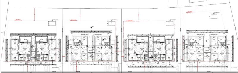
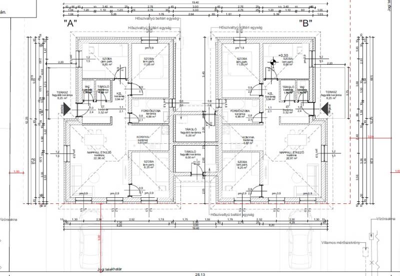
3%-OS OTTHON START HITEL, CSOK+, ILLETÉKMENTESSÉG, ZÖLD-HITEL, ENERGIATAKARÉKOS HÁZAK!!! VASÚTI KÖZLEKEDÉS BUDAPESTRE A KELETI PÁLYAUDVARRA!!!4DB TELEK, 2 FÉLE ALAPRAJZBÓL VÁLSZTHAT!Megvételre kínálok Dömsödön nyugodt környezetben, 800nm-es telkekre épülő, ÚJ, egyszintes, NAPELEMMEL KOMBINÁLHATÓ, HŐSZIVATTYÚS, padlófűtéses, TÁROLÓ KAPCSOLATOS ikerházakat!!Saját elkerített telek, külön albetét házanként!!1.alaprajz A LAKÁS Nettó 75 nm+ Tároló 5nm Terasz: 14 nm Kert: 400nm-Előtér 4,84nm-Amerikaikonyhás-Nappali 28,89nm-szoba 13nmnm-szoba 9,1nm-szoba 9,1nm-fürdő 5,7nm-wc 1.53nm-kamra 2,59nmB LAKÁS Nettó 75 nm+ Tároló 5nm Terasz: 14 nm Kert: 400nm-Előtér 4,84nm-Amerikaikonyhás-Nappali 28,89nm-szoba 13nmnm-szoba 9,1nm-szoba 9,1nm-fürdő 5,7nm-wc 1.53nm-kamra 2,59nm2.alaprajzA LAKÁS Nettó 73 nm+ Tároló 5nm Terasz: 8,25 nm Kert: 400nm-Előtér 3,52nm-Amerikaikonyhás-Nappali 28,83nm-szoba 11,05nmnm-szoba 9,25nm-szoba 8,85nm-fürdő 4,98nm-wc 1.35nm-kamra 1,35nm-közlekedő 3,94nmB LAKÁS Nettó 75 nm+ Tároló 5nm Terasz: 8,25nm Kert: 400nm-Előtér 3,52nm-Amerikaikonyhás-Nappali 28,83nm-szoba 11,05nmnm-szoba 9,25nm-szoba 8,85nm-fürdő 4,98nm-wc 1.35nm-kamra 1,35nm-közlekedő 3,94nmPár műszaki adat 2026-év szabványnak megfelelően:-Leier 30-as téglából épül, tégla válaszfalakkal,-külső szigetelése Dryvit rendszerű szigetelés-fa tetőszerkezet,-fa födém,-függesztett gipszkarton mennyezet,-Bramac cserépfedés-3rétegű, műanyag hőszigetelt nyílászárók -A belső burkolatokat a vevő választja.Bölcsöde, óvoda, iskola, Kultúr és Egészség-Ház, bevásárlási lehetőségek!!Cégünk INGYENES, iroda és bank-független Hitel ügyintézéssel is rendelkezésére áll, nem csak nálunk vásárolt ingatlanokra!!Kérdés és-vagy időpont egyeztetés miatt hívjon bátran akár hétvégén is.Amennyiben nem tudom felvenni visszahívom.
További adatok
Telekterület: 400 m2
Kert mérete: 400 m2
Erkély mérete: 14 m2
Felszereltség: -
Parkolás: -
Kilátás: -
Egyéb extrák:  
-
Hirdető adatai
Hirdető neve: Dream Credit Kft.
Kapcsolattartó: Zsuzsanna Hegedűs
Hirdető telefonszáma: +36707798880
Honlap: -