Budapest, XIII.kerület
 

Ingatlan adatai
Irányár: 134 860 000 Ft
Típus: lakás (újépítésű)
Kategória: eladó
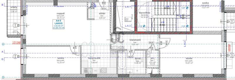
Alapterület: 82 m2
Fűtés: -
Állapota: új
Szobák száma: 3
Építés éve: 2027
Szintek száma: -
Részletes leírás
Projekt bemutatásaFedezze fel Budapest egyik legdinamikusabban fejlődő negyedének legújabb gyöngyszemét! Ez a kiváló lokációval rendelkező, újépítésű projekt a modern városi életforma minden előnyét ötvözi a nyugodt, minőségi otthon kényelmével.A projektről:A beruházás keretében két elegáns épületben összesen 65 válogatott lakás kerül kialakításra. A tervezésnél az időtálló esztétika és a funkcionalitás találkozott, hogy minden lakó megtalálja a számára ideális életteret.Miért érdemes ezt választania?Kiemelkedő minőség: Az építkezés során felhasznált prémium anyagok és a precíz kivitelezés garantálják az értékállóságot és az alacsony fenntartási költségeket.Kiváló elhelyezkedés: A Váci úti irodafolyosó közvetlen közelében, kiváló tömegközlekedési kapcsolatok és teljes körű infrastruktúra (boltok, edzőtermek, parkok) mellett található.Intim lakóközösség: A két különálló épületnek köszönhetően a projekt megőrzi emberléptékű jellegét, biztosítva a privát szférát és a csendes pihenést.Ez a projekt tökéletes választás mind saját otthont keresők, mind a hosszú távú befektetésben gondolkodók számára, akik nem akarnak kompromisszumot kötni a minőség és a központi elhelyezkedés között.
További adatok
Telekterület: -
Kert mérete: -
Erkély mérete: 4 m2
Felszereltség: -
Parkolás: -
Kilátás: utcai
Egyéb extrák:  
-
Hirdető adatai
Hirdető neve: Otthon Centrum
Kapcsolattartó: Pintér Anita
Hirdető telefonszáma: +36 70 465 7041
Honlap: -