Pest megye, Üllő
 

Ingatlan adatai
Irányár: 130 000 000 Ft
Típus: ház
Kategória: eladó
Alapterület: 123 m2
Fűtés: gáz (cirko)
Állapota: -
Szobák száma: 5
Építés éve: 2022
Szintek száma: -
Részletes leírás
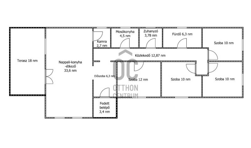
Eladó Üllőn, újszerű állapotban egy kitűnő beosztású, kiváló minőségben épült, földszintes, 112,3 (nettó) nm-es 5 szobás családi ház, mely lakóterületén túl 3,4 nm-es fedett belépővel és 18 nm-es terasszal is rendelkezik. A ház 2022-ben épült, 601 nm-es telekkel rendelkezik, ami egy kizárólagos használati megosztással rendezett telek belső fele. Tágas és teraszkapcsolatos nappali-konyha-étkezőn túl, 4 szobával, háztartási helyiséggel, két fürdővel, tágas előszobával és kamrával is rendelkezik. Fűtését gáz-cirkó biztosítja, a főfalak 15, a faszerkezetű födém 30 cm szigeteléssel rendelkezik, (redőnnyel, és kívűlről mészkő párkánnyal ellátott) műanyag nyílászárói három rétegűek. A világos, praktikus elrendezésű házból, a jó ízléssel válogatott és magas minőségben beépített burkolatok és szaniterek, valamint a koherensen kivitelezett beépített bútorok teremtenek otthont. Ezen felül az ingatlan élhetőségét, kényelmét biztosítja számtalan kiegészítő és műszaki megoldás, mint például az elektromos kapu, a parkosított kertben telepített fúrt kútról üzemeltetett öntözőrendszer, a vakondhálóval ellátott gyepszőnyeg, az udvari tároló kisház, a kialakított gépkocsibeálló, a szobákban elhelyezett 5 db, H-tarifás mérőről üzemeltetett klíma, a riasztórendszer teljes vezetékezésének előre kiépítése, az ízléses konyha gépesítése, a padlástérben kialakított kb. 4 nm-es pakolható terület. Elhelyezkedésének köszönhetően közlekedése kitűnő, vasútállomás sétatávolságra, gyorsforgalmi út pár perc alatt elérhető. A lakókörnyezet barátságos, a közelben óvoda, bölcsöde és játszótér is megtalálható. A birtokba adás tervezett ideje 2026 július közepe.Amennyiben felkeltettem érdeklődését, várom hívását!
További adatok
Telekterület: 601 m2
Kert mérete: 601 m2
Erkély mérete: 18 m2
Felszereltség: -
Parkolás: -
Kilátás: -
Egyéb extrák:  
-
Hirdető adatai
Hirdető neve: Otthon Centrum
Kapcsolattartó: Tőke Zoltán
Hirdető telefonszáma: +36 70 716 9386
Honlap: -