Budapest, XI.kerület
Brassó út 

Ingatlan adatai
Irányár: 57 000 000 Ft
Típus: lakás (tégla)
Kategória: eladó
Alapterület: 37 m2
Fűtés: -
Állapota: -
Szobák száma: 1
Építés éve: 1969
Szintek száma: -
Részletes leírás
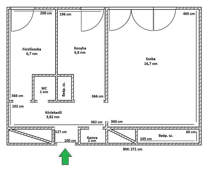
Eladásra kínálunk Sasadon, a Brassó uton egy 37 nm-es, közepes állapotú, 1 szobás, 2. emeleti, csendes, jó elosztású, kifejezetten világos lakást.A ház 2025-ben esett át egy teljes homlokzat felújításon és szigetelésen. Kulcsunk van az ingatlanhoz, rugalmasan tudjuk mutatni.A környék infrastruktúrája kiváló: a közelben iskolák, üzletek, parkok, rendelők találhatók, a tömegközlekedés pedig néhány perc sétával elérhető.Kérdés esetén keressen minket bizalommal!Irodánk ingyenes hiteltanácsadással áll ügyfeleink rendelkezésére.Vevőink részére a közvetítés díjmentes.A hirdetésben szereplő adatok tájékoztató jellegűek.
További adatok
Telekterület: -
Kert mérete: -
Erkély mérete: -
Felszereltség: -
Parkolás: -
Kilátás: kertre néző
Egyéb extrák:  
-
Hirdető adatai
Hirdető neve: MPD Hungary Kft.
Kapcsolattartó: Dodici Quartiere Kft.
Hirdető telefonszáma: +36706500700
Honlap: -