Budapest, VII.kerület
 

Ingatlan adatai
Irányár: 129 000 000 Ft
Típus: lakás (tégla)
Kategória: eladó
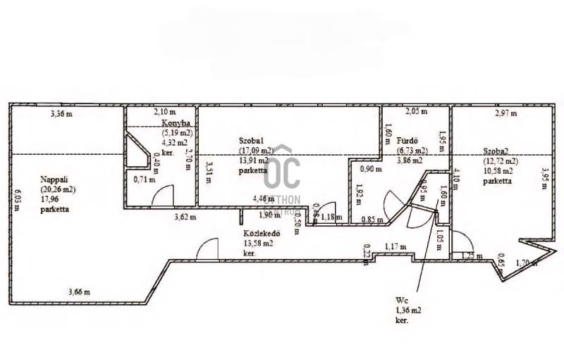
Alapterület: 65 m2
Fűtés: házközponti egyedi méréssel
Állapota: -
Szobák száma: 3
Építés éve: 2005
Szintek száma: -
Részletes leírás
Budapest egyik legkeresettebb részén, a Gozsdu Udvar közvetlen közelében kínálunk megvételre egy igényesen felújított, modern kialakítású, világos lakást, amely tökéletes választás akár saját otthonnak, akár befektetésnek.A 78 m² bruttó (65 m² nettó) alapterületű ingatlan átgondolt elrendezéssel rendelkezik: két kényelmes hálószoba, egy tágas, nagy ablakfelületekkel rendelkező nappali, zuhanyzós fürdőszoba és külön mellékhelyiség biztosítja a komfortos mindennapokat. A lakás minden helyiségéből panorámás városi kilátás tárul elénk, a természetes fény egész nap meghatározza a belső tereket.A felújítás során kizárólag új, még nem használt bútorok és gépek kerültek beépítésre. A modern konyha teljesen felszerelt, mosogatógéppel ellátott, a szobák légkondicionáltak, így a lakás minden évszakban ideális környezetet nyújt munkához, tanuláshoz és pihenéshez.Elhelyezkedés és infrastruktúra:A Gozsdu Udvar, éttermek, kávézók, üzletek és szórakozási lehetőségek néhány lépésre találhatók, a környék kiváló közlekedése révén Budapest bármely pontja gyorsan elérhető. Igény esetén parkolóhely bérelhető a ház teremgarázsában.További előnyök:– Azonnal költözhető állapot– Kiemelkedő befektetési potenciállal rendelkezik– Teljes berendezéssel, kiegészítőkkel együtt eladóEz a lakás ritka lehetőség a belvárosi ingatlanpiacon, ahol a minőség, az elhelyezkedés és a funkcionalitás egyszerre érvényesül.Érdeklődjön most, és tekintse meg személyesen ezt a kivételes adottságú belvárosi ingatlant!
További adatok
Telekterület: -
Kert mérete: -
Erkély mérete: -
Felszereltség: -
Parkolás: -
Kilátás: utcai
Egyéb extrák:  
-
Hirdető adatai
Hirdető neve: Otthon Centrum
Kapcsolattartó: Erdős Dávid
Hirdető telefonszáma: +36 70 461 9921
Honlap: -