Budapest, II.kerület
 

Ingatlan adatai
Irányár: 199 000 000 Ft
Típus: lakás (tégla)
Kategória: eladó
Alapterület: 80 m2
Fűtés: házközponti fűtés
Állapota: -
Szobák száma: 3
Építés éve: -
Szintek száma: -
Részletes leírás
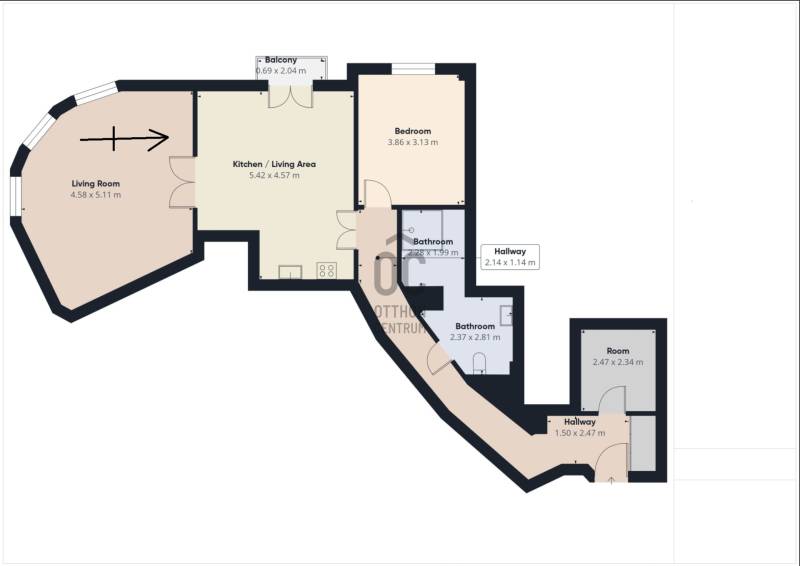
Eladásra kínálunk egy valóságban 95 m² alapterületű, teljes körűen felújított lakást Budapest II. kerületének egyik legkedveltebb részén, a Szilágyi Erzsébet fasor közelében. Az ingatlan a társasház 3. emeletén található, rendezett, liftes épületben.(A tulajdoni lap szerinti alapterület: 80 m².)Főbb jellemzőkValós alapterület: 95 m²Tulajdoni lap szerinti alapterület: 80 m²Elrendezés: 1 hálószoba, tágas nappali, külön gardrób helyiségBelmagasság: 3,3 mErkély kellemes kilátással a Budai-hegyek irányábaFűtés: házközponti fűtés radiátorokkalKlíma: modern hűtő-fűtő rendszerFelújítás: teljes gépészeti és esztétikai felújításelektromos hálózat cserélvevíz- és csatornarendszer cserélvemodern burkolatok és szaniterekúj konyhai és fürdőszobai kialakításA lakás elosztása átgondolt és kényelmes: egy tágas nappali, egy különálló hálószoba, valamint egy külön gardrób biztosítja a praktikus lakhatást. A 3,3 méteres belmagasság elegáns, tágas érzetet kelt, a nagy méretű nyílászárók pedig kiváló fényviszonyokat biztosítanak.Környék és infrastruktúraA lokáció kiemelkedően kényelmes:Városmajor parkSzéll Kálmán térFény utcai piacMamut bevásárlóközpontTöbb busz- és villamosjáratmind néhány perc sétatávolságra található.A környéken kiválóak a szolgáltatások, kulturális lehetőségek, sportlétesítmények és vendéglátóhelyek is.
További adatok
Telekterület: -
Kert mérete: -
Erkély mérete: 1 m2
Felszereltség: -
Parkolás: -
Kilátás: utcai
Egyéb extrák:  
-
Hirdető adatai
Hirdető neve: Otthon Centrum
Kapcsolattartó: Gál Péter
Hirdető telefonszáma: +36 70 716 9206
Honlap: -