Bács-Kiskun megye, Kecskemét
 

Ingatlan adatai
Irányár: 135 000 000 Ft
Típus: ház
Kategória: eladó
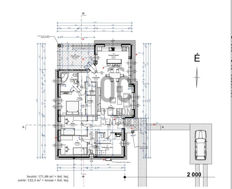
Alapterület: 144 m2
Fűtés: -
Állapota: új
Szobák száma: 4
Építés éve: 2026
Szintek száma: -
Részletes leírás
Kecskemét Hetényegyháza egyik legnyugodtabb, erdőközeli területén kínálom megvételre ezt a kivételes lehetőséget: egy 7454 m²-es, természetközeli telekre építhető nettó 144,1 m²-es, modern újépítésű családi házat.A tervezett ingatlan nappali + 3 szoba + dolgozószoba elosztásával ideális választás családoknak és otthonról dolgozóknak, akik a város közelségét, ugyanakkor a csendes, tiszta levegőjű környezetet részesítik előnyben.Főbb jellemzők:-7454 m²-es, erdős környezetű telek-Nettó 144,1 m²-es lakótér-Nappali + 3 hálószoba + gardrób-19 m²-es terasz-Egy állásos, fedett gépkocsi-beálló- kettő fürdőszoba-2025-ben indítható kivitelezés, választható belső burkolatokkalMűszaki tartalom:-30 cm vastag vázkerámia tégla falazat-15 cm vastag EPS hőszigetelés-3 rétegű, hőszigetelő üvegezésű nyílászárók-Hőszivattyús fűtés és meleg víz-ellátás-Modern, energiatakarékos gépészeti megoldások-Minőségi hideg- és melegburkolatok-Korszerű alaprajzi kialakítás, praktikus térszervezés-Vízellátás: fúrt kútról, víz tisztítóval ellátvaKörnyezet:Az ingatlan különlegessége a nagy méretű telek, amely kivételes privát teret és nyugalmat biztosít. Az erdős környezet ideális azok számára, akik szeretnének kiszakadni a városi zajból, de továbbra is elérhető távolságban szeretnének maradni Kecskemét fontosabb pontjaitól.Építés kezdete:A kivitelezés 2025-ben megkezdhető, így a leendő tulajdonosnak lehetősége van bizonyos belső kialakítások, burkolatok és színek kiválasztására.Bővebb felvilágosításért keressen bizalommal!Kecskemét, Hetényegyháza, újépítés, nappali+4szoba, nagy telek, hőszivattyú
További adatok
Telekterület: 7 454 m2
Kert mérete: 7 454 m2
Erkély mérete: 19 m2
Felszereltség: -
Parkolás: -
Kilátás: -
Egyéb extrák:  
-
Hirdető adatai
Hirdető neve: Otthon Centrum
Kapcsolattartó: Boros Julianna
Hirdető telefonszáma: +36 70 388 5866
Honlap: -