Pest megye, Monor
 

Ingatlan adatai
Irányár: 90 000 000 Ft
Típus: ház
Kategória: eladó
Alapterület: 92 m2
Fűtés: -
Állapota: felújított
Szobák száma: 3+1
Építés éve: 1995
Szintek száma: -
Részletes leírás
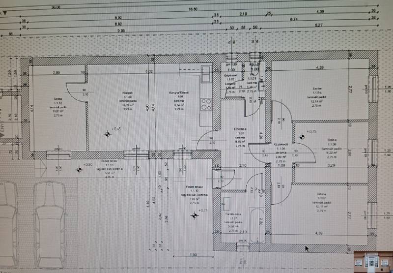
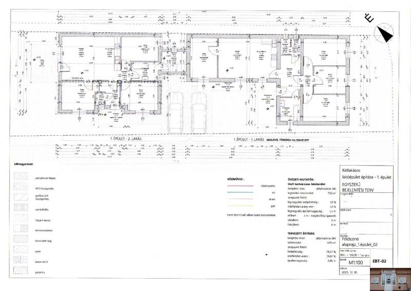
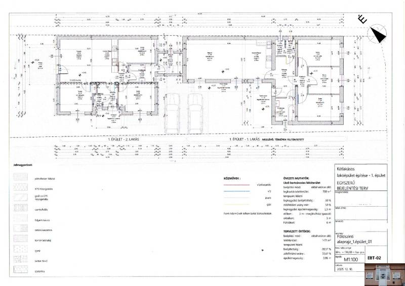
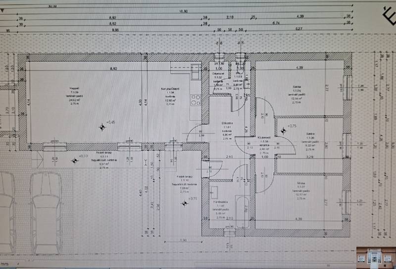
HASZNÁLJA KI A CSOK+ KAMATTÁMOGATOTT HITEL ELŐNYEIT, A 4% ILLETÉKKEDVEZMÉNYT, VALAMINT A 3%-OS OTTHON START HITELT!!!!!!10 % FOGLALÓVAL, + 10 % VÉTELÁR ELŐLEGGEL LEKÖTHETŐ!!!Monor kertvárosában 2×2 társasházi lakás épül, saját telekkel, közös kocsibeállóval melyek I. ütemének FOGLALÁSA MÁR MEGKEZDŐDÖTT!!!Az 1. lakás lakóterülete 92,35 m2, melyben előszoba (8,95 m2), nappali (24,02 m2), konyha-étkező (12,82 m2), közlekedő (2,80 m2), 1. szoba (12,14 m2), 2. szoba (9,22 m2), 3. szoba (12,17), fürdőszoba (5,08 m2), WC (3,49 m2), és gépészet (1,66 m2) található, valamint egy fedett terasz (7,69 m2) van a bejárat előtt.Igény szerint a nappaliból egy 4. szoba (11,61 m2) is kialakítható, így a nappali (18,29 m2), a konyha-étkező (6,54 m2) lesz.Az ingatlanhoz kb. 50 m2 saját telek tartozik.Fűtés: hőszivattyúval („H” tarifa), hőleadás padlófűtéssel, valamint inverteres klímával.Közművek közül vezetékes víz, villany („H” tarifával), és csatorna bevezetésre kerül.Az ingatlan a ’90-es években épült téglából, ezt újítják fel teljes egészében: új szigetelést, nyílászárókat, fűtésrendszert, és a vevő által kiválasztott burkolatot kap, valamint a belső tereket is átalakítják a mai kor elvárásainak megfelelően.ÁRA: 90.000.000.- FtEhhez az ingatlanhoz csatlakozik az új építésű 2. lakás, mellyel csak a tárolóval ér össze.A 2. lakás lakóterülete 76,18 m2, melyben előszoba (4,38 m2), nappali (18,52 m2), konyha-étkező (8,48 m2), közlekedő (1,10 m2), 1. szoba (11,05 m2), 2. szoba (10,30 m2), 3. szoba (10,64), fürdőszoba (5,13 m2), WC (1,17 m2), és tároló (5,46 m2) található, valamint egy előlépcső (4,16 m2), és egy terasz (11,70 m2) kapcsolódik a nappalihoz.Fűtés: hőszivattyúval („H” tarifa), hőleadás padlófűtéssel, valamint inverteres klímával.Közművek közül a villany („H” tarifával), vezetékes víz kerül bevezetésre, a szennyvízelvezetés emésztőbe történik.ÁRA: 83.800.000.- FtElektromos kapu!Burkolatok 8.000.- Ft/m2 árig választhatóak.Átadás: 2026. IV. negyedévAZ ELKÉSZÜLT INGATLANOKRÓL FELTÖLTÖTT KÉPEK A VÁLLALKOZÓ ÁLTAL ÉPÍTETT INGATLANOK REFERENCIAMUNKÁI!!!DÍJMENTES HITELÜGYINTÉZÉS IRODÁNKBAN!!!OTTHON START HITEL, CSOK+, BABAVÁRÓ KÖLCSÖN, KAMATTÁMOGATOTT LAKÁSHITELEK, ….2003 ÓTA AZ ÖNÖK BIZALMÁBAN!
További adatok
Telekterület: 100 m2
Kert mérete: 100 m2
Erkély mérete: 7 m2
Felszereltség: -
Parkolás: -
Kilátás: -
Egyéb extrák:  
-
Hirdető adatai
Hirdető neve: Judit Ingatlairoda Kft.
Kapcsolattartó: Moldván Judit
Hirdető telefonszáma: 06-30-625-5266
Honlap: -