Pest megye, Ecser
 

Ingatlan adatai
Irányár: 57 900 000 Ft
Típus: lakás (tégla)
Kategória: eladó
Alapterület: 56 m2
Fűtés: gáz (cirko)
Állapota: -
Szobák száma: 2
Építés éve: 1978
Szintek száma: -
Részletes leírás
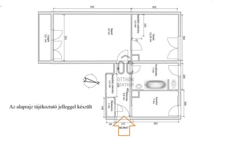
Megvételre kínálom ezt az első emeleti 2 szobás, 56 m²-es társasházi lakást Ecseren, az Arany János utcai lakóparkban. Ecser a 17. kerület szomszédságában található. 1-5 perc séta az állomás (25 perc a Keleti PU) és 10 perc séta a buszmegállóktól (30 perc az Örs vezér tere, ill. a KöKi) valamint autóval 7 perc az Auchan, Lidl, Aldi Spar. Pár perc séta a bölcsőde és óvoda, valamint az élelmiszerbolt. A ház szigetelt, egyedi központi fűtése cirkóval, így a rezsi is kedvező. A lakást ajánlom első lakásnak, illetve befektetésnek is kiváló lehet. Tulajdonságai: - Helyszín: Ecser, Arany János utcai lakópark - Ingatlan típusa: társasházi lakás - Alapterület: nettó 56 m² - Szobák száma: 2 (nappali + hálószoba) - Fürdőszobák száma: 1 kádas, WC-vel - Erkély/loggia: 3,5 m², panorámás kilátással - Önálló nagyméretű garázs elektromos nyitású kapuval - Tároló: önálló - Társasházi zárt kert, piknikező és játszótér - Építési mód: csúsztatott zsalus kivitelezés - Kilátás: kertre - Közlekedés: kiváló - Akár egy tisztasági festéssel költözhető. Amennyiben kérdésed van, vagy szeretnéd megtekinteni az ingatlant, hívj és megbeszéljük a részleteket! Segítséget nyújtunk a vásárláshoz pénzügyi szakembereink bankfüggetlen pénzügyi termékkínálatával, valamint ingatlan szakjogászunk biztosítja a problémamentes vásárlást. #Csok plusszal vagy akár #3%-os hitellel is megvehető.Ez az ingatlan a \"Felező csomag\" megbízási portfólióhoz tartozik. Részletek az Otthon Centrum weboldalán.
További adatok
Telekterület: -
Kert mérete: -
Erkély mérete: 4 m2
Felszereltség: -
Parkolás: -
Kilátás: utcai
Egyéb extrák:  
-
Hirdető adatai
Hirdető neve: Otthon Centrum
Kapcsolattartó: Polgár Péter
Hirdető telefonszáma: +36 70 716 9831
Honlap: -