Pest megye, Vác
Vác 

Ingatlan adatai
Irányár: 99 500 000 Ft
Típus: ház
Kategória: eladó
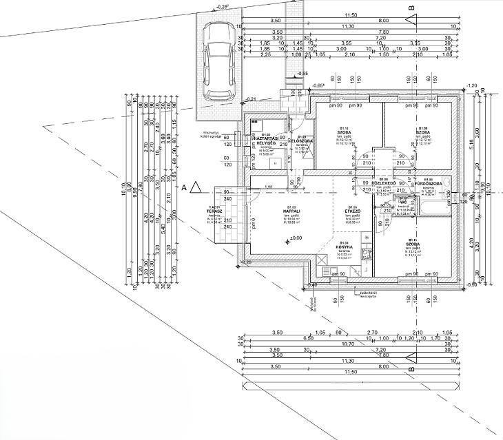
Alapterület: 86 m2
Fűtés: egyéb
Állapota: új
Szobák száma: 4
Építés éve: 2025
Szintek száma: -
Részletes leírás
Vácon a Bácska-dűlőben kínálunk eladásra egy modern, új építésű családi házat!A 87 nm-es otthon három szobával, amerikai konyhás nappalival, fürdőszobával, külön WC-vel és kényelmes terasszal várja leendő lakóit.A ház kiemelkedő műszaki tartalommal készül: hőszivattyús fűtésrendszer padlófűtéses hőleadással, valamint fűtő-hűtő klímák gondoskodnak a megfelelő hőmérsékletről minden évszakban. A 15 cm-es szigetelés és a tripla üvegezésű, thermo műanyag nyílászárók magas energiahatékonyságot biztosítanak, így nemcsak komfortos, de gazdaságosan fenntartható otthont kínál.Északi fekvésű, panorámás kilátásának köszönhetően minden nap élvezheted a környék szépségét. Az udvarban autóbeálló áll rendelkezésre, a környék pedig csendes és nyugodt.Kiváló elhelyezkedés: a buszmegálló mindössze 10 perc sétára található, így a belváros könnyen megközelíthető, az autópálya pedig 5 perc alatt elérhető, ami ideális azoknak, akik gyors közlekedést szeretnének.A ház 2026 nyarára készül el, és az új tulajdonos választhatja ki a burkolatokat, a befejezés előtt, így teljes mértékben személyre szabhatja az otthonát.Kérdésével, illetve megtekintési szándékával keresse irodánkat. Hitelre lenne szüksége új otthonának megvásárlásához, profi hitelközvetítő kollegáink állnak rendelkezésükre.Amennyiben eladásra lenne szükségük a vásárláshoz, irodánk egész Vác területén ingyenes értékbecslést vállal.
További adatok
Telekterület: 541 m2
Kert mérete: 541 m2
Erkély mérete: -
Felszereltség: -
Parkolás: -
Kilátás: udvari
Egyéb extrák:  
-
Hirdető adatai
Hirdető neve: MPD Hungary Kft.
Kapcsolattartó: La Casa di Vác Kft.
Hirdető telefonszáma: +36202835232
Honlap: -