Pest megye, Dömsöd
 

Ingatlan adatai
Irányár: 48 900 000 Ft
Típus: ház
Kategória: eladó
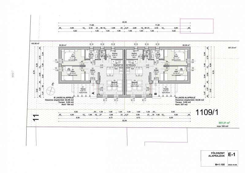
Alapterület: 64 m2
Fűtés: egyéb
Állapota: új
Szobák száma: 1+2
Építés éve: 2026
Szintek száma: -
Részletes leírás
ENERGIATAKARÉKOS IKERHÁZ DÖMSÖDÖN! KARÁCSONYI AKCIÓ!!Modern, téglaépítésű otthonok családias környezetben.Csendes, zöldövezeti környezetben kínálunk eladásra új építésű, energiatakarékos ikerházat.A gondosan megtervezett, tégla építésű otthonok a mai családok igényeit szem előtt tartva készülnek, korszerű hőszigeteléssel és alacsony fenntartási költséggel.Főbb jellemzők:Porotherm 30-as téglából épülHasznos alapterület: 64 nmTelekméret: 357 nmElrendezés: nappali + 2 hálószobaEnergiaosztály: A+Fűtés: hőszivattyús rendszerÁr: 48.900.000 FtAz ingatlan 2026. II. negyedévében kerül átadásra.További információért keressen bizalommal.
További adatok
Telekterület: 357 m2
Kert mérete: 357 m2
Erkély mérete: -
Felszereltség: -
Parkolás: -
Kilátás: -
Egyéb extrák:  
-
Hirdető adatai
Hirdető neve: Dabas Régió
Kapcsolattartó: Szlamka Klára
Hirdető telefonszáma: 06 20 400 4004
Honlap: -