Tolna megye, Kismányok
 

Ingatlan adatai
Irányár: 9 500 000 Ft
Típus: ház
Kategória: eladó
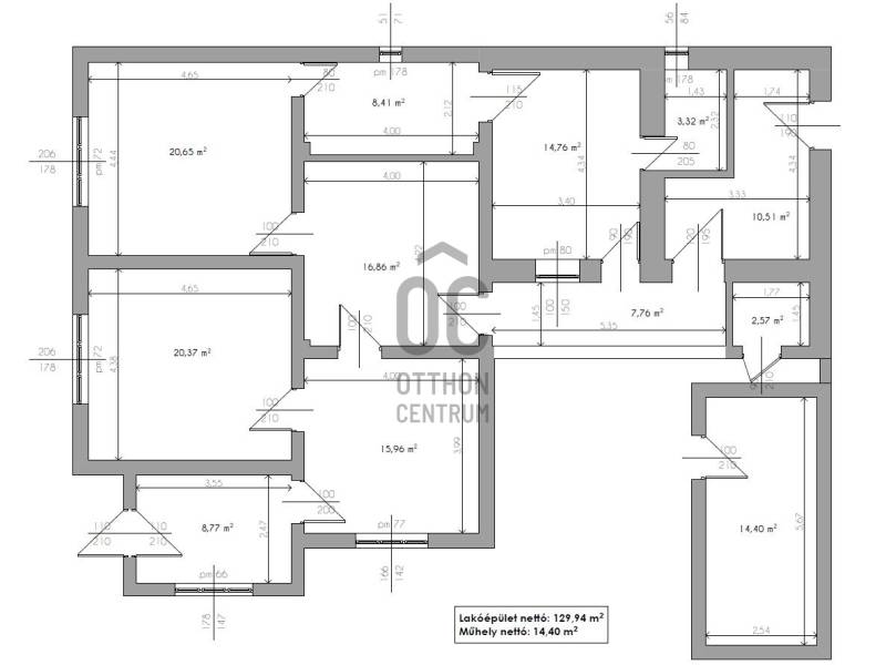
Alapterület: 130 m2
Fűtés: -
Állapota: felújítást igényel
Szobák száma: 4
Építés éve: 1969
Szintek száma: -
Részletes leírás
Kismányokon családi ház eladó! Kismányok a Mecsek lábánál fekszik, 8 km-re Bonyhádtól. A település jó minőségű aszfaltozott úton megközelíthető. A ház fekvése különleges a falun belül, hiszen utána már csak elhagyott kertek, pincék és az erdő következik. Teljes a nyugalom, csend, béke! Első sorban annak ajánlom, aki ezt nagyon értékeli! Közművek közül minden adott, bár a gázóra le lett szerelve. Ha valaki használni szeretné, visszakötést igényel. Régóta nem lakott és fűtetlen a ház, ezért az egyik fal kissé megrogyott, foglalkozást igényel. Ez elmondható a tetőn kívül a ház többi részéről is. A régi vályogház lett bővítve tégla falazattal, az alaprajzon jelölve lettek a falvastagságok. Méretéből adódóan több generációnak is alkalmas lehet a ház! A legfrissebb fejlesztések az új ereszcsatorna és két műanyag ablak a házon. Külön helyrajzi számon a házzal pont szemben található egy 145 m2-es terület melyen kert, garázs és tároló találhatók.Ajánlom a házat neked, ha jól megközelíthető felújítási alapot keresel a természethez közel!
További adatok
Telekterület: 395 m2
Kert mérete: 395 m2
Erkély mérete: -
Felszereltség: -
Parkolás: -
Kilátás: -
Egyéb extrák:  
-
Hirdető adatai
Hirdető neve: Otthon Centrum
Kapcsolattartó: Pintér Dániel
Hirdető telefonszáma: +36 70 461 9486
Honlap: -