Veszprém megye, Dörgicse
 

Ingatlan adatai
Irányár: 34 900 000 Ft
Típus: nyaraló
Kategória: eladó
Alapterület: 56 m2
Fűtés: -
Állapota: felújítást igényel
Szobák száma: 2
Építés éve: -
Szintek száma: -
Részletes leírás
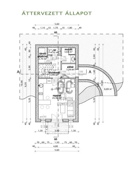
Dörgicse külterületén, az Agyaglik-dűlőben eladó ez a művelésből kivont, 507 nm-es terület, a rajta feltüntetett 56 nm-es kőházzal. Az épület kő falazata nyomokban még áll, de elbontandó, helyére a jelenlegi mérettel megegyező gazdasági épület van megtervezve és engedélyeztetve! Tehát NEM KELL sem kifüggeszteni, sem szőlővel telepíteni, azonnal megkezdhető az építkezés!A telken áll az új áram bekötés, az úttal határos a telek, tehát egész évben kényelmesen megközelíthető.Egyéb közmű nincsen, zárt emésztős szennyvíztárolás lehetséges és kútfúrással (vagy ciszternával) megoldható a vízellátás. A terület minimálisan lejt, körülötte táblás mezőgazdasági területek vannak, szomszédságában kisebb régi pincék, amelyek sorra szépülnek meg. A Balaton is látszódik! ;)A képek között megtalálható a tervezett épület alaprajza és látványterve, de minden egyéb információ is rendelkezésre áll. Kevés ilyen lehetőséget találni, jöjjön, nézze meg!
További adatok
Telekterület: 507 m2
Kert mérete: 507 m2
Erkély mérete: -
Felszereltség: -
Parkolás: -
Kilátás: -
Egyéb extrák:  
-
Hirdető adatai
Hirdető neve: Otthon Centrum
Kapcsolattartó: Csesznák Veronika
Hirdető telefonszáma: +36 70 412 5136
Honlap: -