Hajdú-Bihar megye, Hajdúsámson
 

Ingatlan adatai
Irányár: 97 500 000 Ft
Típus: ház
Kategória: eladó
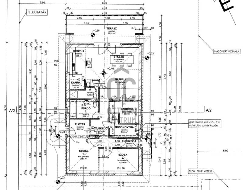
Alapterület: 93 m2
Fűtés: gáz (cirko)
Állapota: új
Szobák száma: 3
Építés éve: 2025
Szintek száma: -
Részletes leírás
Hajdúsámson csendes részén, rövid időn belül beköltözhető, modern családi ház eladó!Az ingatlan egy 93 m²-es, új építésű, korszerű kialakítású 3 szobás + amerikai konyhás-nappalis családi ház, amely kimagasló műszaki tartalommal és energiahatékonysággal készül.Szerkezet és szigetelés- 30 cm-es Porotherm/Leier tégla falazat- 15 cm homlokzati EPS hőszigetelés- 10 cm XPS lábazati szigetelés- 30 cm födémszigetelés- 3 rétegű üvegezésű, 6 légkamrás műanyag nyílászárókFűtés és gépészet- korszerű padlófűtés- a vételár része 2 db inverteres klíma- a modern technológiának köszönhetően rendkívül alacsony fenntartási költség várhatóKözműellátás- A kivitelező a közművek telken belüli csatlakoztatását elvégzi, amennyiben erre adott a lehetőség.- Városi víz hiányában házi vízmű kerül kialakításra- Csatornahálózat hiányában 3 m³-es zárt szennyvíztartály készül (igény szerint nagyobb kapacitásúra is cserélhető, azonban ez nem része az alapárnak)A ház jelenleg körülbelül 70%-os készültségi szinten áll, a tervezett átadás 3–4 hónapon belül várható. Az ingatlan kiváló választás mindazoknak, akik megbízható kivitelezésű, jól szigetelt, energiatakarékos és alacsony rezsijű új otthont keresnek nyugodt, csendes környezetben, mégis elérhető közelségben a várostól.
További adatok
Telekterület: 728 m2
Kert mérete: 728 m2
Erkély mérete: 24 m2
Felszereltség: -
Parkolás: -
Kilátás: -
Egyéb extrák:  
-
Hirdető adatai
Hirdető neve: Otthon Centrum
Kapcsolattartó: Takács Tamás
Hirdető telefonszáma: +36 70 388 6186
Honlap: -