Heves megye, Apc
 

Ingatlan adatai
Irányár: 20 000 000 Ft
Típus: ház
Kategória: eladó
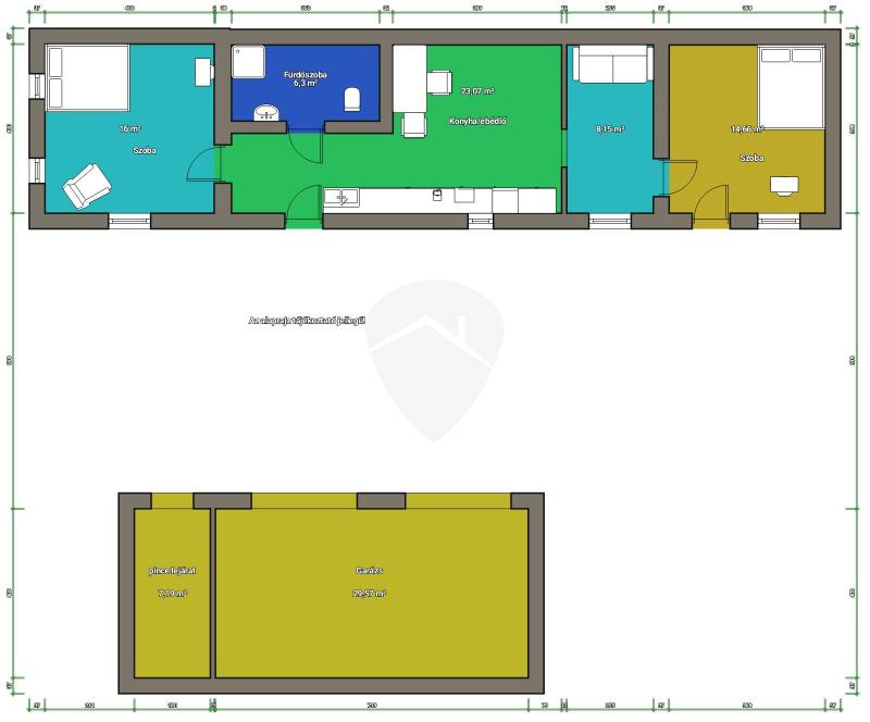
Alapterület: 62 m2
Fűtés: gáz (konvektor)
Állapota: felújítást igényel
Szobák száma: 3
Építés éve: 1930
Szintek száma: -
Részletes leírás
Fedezd fel ezt a különleges eladó házat Apc szívében! Ez a vályogépítésű ingatlan 62 négyzetméteres alapterülettel rendelkezik, és ideális választás lehet családoknak vagy akár fiatal pároknak, akik saját ízlésükre szeretnék formálni új otthonukat. A házban két világos szoba található, amelyek tágas teret kínálnak a mindennapi élethez. Az ingatlan felújítandó állapotban van, így lehetőséged van arra, hogy saját elképzeléseid szerint alakítsd ki. A gázkonvektoros fűtés pedig biztosítja a kellemes meleget a hideg hónapokban. A rendezett kert és a kerti tároló extra lehetőségeket kínál a szabadban való pihenésre és a kerti munkákra.Extrák:-új bojler-gépesített konyha bútor- Bútorozott-pince(12m2)-tető szerkezet 15 éves-új elektromos vezeték-beépített kályha Apc környezete csendes és nyugodt, ideális helyszín a pihenésre és a kikapcsolódásra. A környék barátságos hangulata, valamint a szomszédos házak rendezett külseje mind hozzájárulnak ahhoz, hogy itt igazán otthon érezd magad. A közeli szolgáltatások, boltok és iskolák könnyen elérhetők, így minden szükséges dolog a közelben található. A természet közelsége lehetőséget ad a kirándulásokra és a szabadidős tevékenységekre is, így a család minden tagja megtalálhatja a számára kedvező programokat.Közlekedési szempontból a ház kitűnő lehetőségeket kínál. Autóval könnyen megközelíthető a közeli városok, és a tömegközlekedés is jól kiépített, így a napi ingázás nem jelenthet problémát. A buszmegállók csak néhány percre találhatók.Ne habozz, vedd fel velem a kapcsolatot, ha kérdéseid vannak, vagy szeretnéd megtekinteni ezt a kivételes ingatlant! Az álomotthonod már csak egy telefonhívásra van!
További adatok
Telekterület: -
Kert mérete: -
Erkély mérete: -
Felszereltség: -
Parkolás: -
Kilátás: panorámás
Egyéb extrák:  
-
Hirdető adatai
Hirdető neve: Ingatlanmentor powered by Rock Home
Kapcsolattartó: Balog Dávid
Hirdető telefonszáma: +36 70 467 6818
Honlap: -