Pest megye, Alsónémedi
 

Ingatlan adatai
Irányár: 109 990 000 Ft
Típus: ház
Kategória: eladó
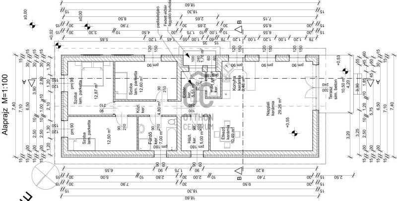
Alapterület: 110 m2
Fűtés: -
Állapota: új
Szobák száma: 4
Építés éve: 2025
Szintek száma: -
Részletes leírás
Eladó Alsónémedin egy önálló családi ház, ami a 3%-os Otthon Start Programnak megfelel!!!Magas műszaki színvonal | Energiatakarékos otthon | Csendes környezetEladó Alsónémedin az Alsóerdősor utcában egy egyszintes, új építésű, önálló Családi ház . 3 Szoba + amerikai konyhás nappali, fürdőszoba-wc, külön wc, háztartási helyiség✅ A ház főbb adatai:•Telek: 650m² (nagy telek opció)•Nettó Lakóterület: 110 m²•Beépítés: szabadonálló•Átadás: 2026. június vége✅ Magas műszaki tartalom:•Porotherm 30 N+F tégla falazat•15 cm homlokzati hőszigetelés•Terrán Carbon antracit tetőcserép•Hőszivattyús fűtési rendszer (energiatakarékos)•3 rétegű antracit műanyag nyílászárók +párkányok•Antracit ereszcsatorna és modern szürke homlokzati díszcsíkok•Elektromos kapubeálló előkészítve•1 db klíma az árban (nappali)•Elektromos redőny vagy sima redőny kérésre plussz költségként kérhető.✅ Belső kialakítás – választható burkolatokkal!A vevő saját ízlésére szabhatja otthonát, mert a burkolatok és szaniterek szabadon választhatók:BurkolatokVálasztható értékhatár (benne az árban)Hidegburkolat (járólap): 6.000 Ft/m²-igMelegburkolat: 5.000 Ft/m²-igKád és tartozékai: 80.000 FtBeltéri ajtók kilincsel: 70.000 Ft/dbCsaptelep: 20.000ft/dbMosdó: 20.000ft/db✅ Eddig az értékhatárig a kivitelező állja a költséget, a vevő saját maga választhatja ki a burkolatokat!✅ Igény esetén magasabb kategóriájú burkolatok is rendelhetők felár ellenében!✅ Víz vagy csatorna kiállás kérésre: 60.000ft/db✅ Villany kiállás fogyasztóként kérésre: 35.000/db✅ Kerti csap ára kompletten szerelve kérésre: 130.000ft/db (távolság függő)✅ A festés kétszeri glettelést és kétszeri fehér festést tartalmaz.✅ A teraszok búrkolva, a terep síkra húzva, takarítva kerül átadásra. A kiskaputól a házig a ház körül a járda valamint a kocsi beálló viacolorból készül.✅ Kültéri kerti lámpák és ház körüli lámpák előkészítés és szerelés csak kérésre plussz költségként.✅ A riasztó és kamerarendszer kiépítve✅ A településen található 2 bölcsöde, 2 óvoda, 1 iskola, gyógyszertár, posta, önkormányzat, pékségek, több élelmiszer bolt! +polgárőrség járja egész nap a települést!✅ Közvetlen buszjárat van a Népligetbe, aminek kb. 20 perc menetidő!✅ Az ingatlan a 3% Otthon Start Programnak megfelel!Hívjon a hét bármelyik napján bővebb tájékoztatásért!
További adatok
Telekterület: 650 m2
Kert mérete: 650 m2
Erkély mérete: 11 m2
Felszereltség: -
Parkolás: -
Kilátás: -
Egyéb extrák:  
-
Hirdető adatai
Hirdető neve: Otthon Centrum
Kapcsolattartó: Tóthné Simon Emőke
Hirdető telefonszáma: +36 70 412 4346
Honlap: -