Budapest, XIII.kerület
 

Ingatlan adatai
Irányár: 199 500 000 Ft
Típus: lakás (tégla)
Kategória: eladó
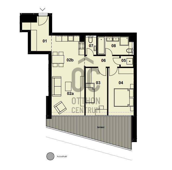
Alapterület: 70 m2
Fűtés: -
Állapota: -
Szobák száma: 3
Építés éve: 2022
Szintek száma: -
Részletes leírás
Ez a Budapest XIII. kerületében, a Vizafogó városrészben található újszerű, 70 négyzetméteres lakás 19nm-es terasszal tökéletes választás mindazoknak, akik a modern életstílust és a kényelmet keresik.Ez a háromszobás lakás nem csupán világos, otthonos, de igényes is, ami a prémium kivitelezésnek köszönhető. Az amerikai konyhás nappali és a szobák elrendezése ideális a családi élethez vagy baráti összejövetelekhez. A beépített bútorok és szekrények, valamint a motoros árnyékolórendszer a lakás eleganciáját és funkcionalitását emelik ki, míg a 19 négyzetméteres terasz kiváló lehetőséget biztosít a szabadban való pihenésre, gyönyörű zöld kilátással.A fűtés hőszivattyús rendszerrel megoldott, amely nem csupán gazdaságos, hanem környezetbarát is. A mennyezethűtés biztosítja a kellemes hőmérsékletet a nyári hónapokban, így Ön mindig komfortosan érezheti magát otthonában. Az ingatlan biztonságát portaszolgálat garantálja, amely a modern lakóparkok egyik legnagyobb előnye.Ez a lakás nem csupán egy ingatlan, hanem egy életstílus, amely a modern, városi élet minden előnyét magában foglalja. Ha Ön egy olyan ingatlant keres, amely megfelel a mai kor követelményeinek, akkor ez a kivételes ajánlat Önre vár. Kérjük, ne habozzon feltenni kérdéseit vagy érdeklődni a részletekről, hiszen szívesen állunk rendelkezésére, hogy segítsünk Önnek megtalálni álmai otthonát vagy befektetését.
További adatok
Telekterület: -
Kert mérete: -
Erkély mérete: 19 m2
Felszereltség: -
Parkolás: -
Kilátás: kertre néző
Egyéb extrák:  
-
Hirdető adatai
Hirdető neve: Otthon Centrum
Kapcsolattartó: Frimmel Mariann
Hirdető telefonszáma: +36 70 716 9826
Honlap: -