Budapest, II.kerület
 

Ingatlan adatai
Irányár: 193 200 000 Ft
Típus: lakás (tégla)
Kategória: eladó
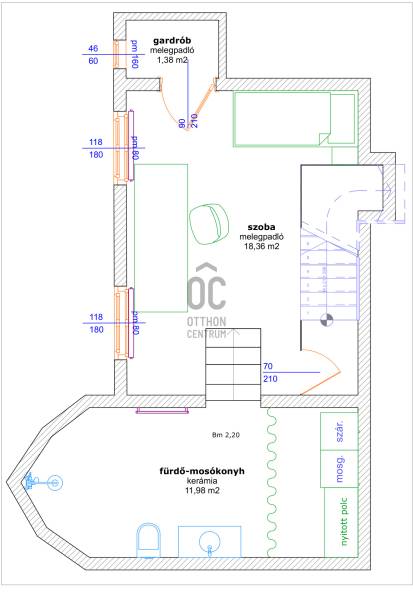
Alapterület: 84 m2
Fűtés: gáz (cirko)
Állapota: -
Szobák száma: 3
Építés éve: 1925
Szintek száma: -
Részletes leírás
RÉMIUM DUPLEX LAKÁS ELADÓ PASARÉT SZÍVÉBEN – MŰTEREM VILLÁBAN, BELVÁROSI KÉNYELEMMEL ÉS ZÖLDÖVEZETI NYUGALOMMALPasarét egyik legszebb, örökzöldekkel övezett utcájában kínáljuk megvételre ezt a különleges atmoszférájú, belsőépítész által tudatosan megtervezett, magas esztétikai értéket képviselő duplex lakást.A 84 m²-es lakóteret további 8 m² napsütötte terasz és egy 12 m²-es, lakással egybenyitott tároló egészíti ki. A lakás keleti–déli tájolású, egész nap világos, finom, harmonikus terekkel.A terasz és az ablakok a hátsó, gondozott, örökzöld kertre néznek, ahol a város zaja már nem hallatszik – a csend és a természet közelsége azonnal érezhető.2020-ban teljes körű, magas minőségű felújításA korszerűsítés minden részletre kiterjedt:- új elektromos-, riasztó-, víz- és fűtésrendszer (kondenzációs kazán)- egyedi, szigetelt fa nyílászárók-fa padló, prémium gres burkolatok, Kerakoll falmegoldások-Laufen és Hansgrohe szaniterek- egyedi tervezésű konyha AEG készülékekkel- AEG mosó- és szárítógépPraktikus, jól használható két szintenALSÓ SZINT- 2,70 m belmagasság-szoba, gardrób, fürdőszoba, külön mosóhelyiség- az ablakok 110 cm parapetmagassága biztosítja a privát, zöld kertre néző kilátástEXTRA LEHETŐSÉG: külön bejáratú iroda vagy rendelő is kialakítható – ideális otthoni munkavégzéshezMAGASFÖLDSZINT* az udvar felől 1. emeleti magasságnak felel meg* 3,20 m belmagasság – elegáns, levegős térérzet* amerikai konyhás nappali, napfényes terasz* hálószoba gardróbszekrénnyel* zuhanyzós fürdőszoba* tágas előtérA TÁRSASHÁZ* 9 lakásos, rendezett épület jó lakóközösséggel* udvari gépkocsibeálló kialakítható igény esetén* a kapu, ajtó és lépcsőház felújítása tervezés alattELHELYEZKEDÉSA környék infrastruktúrája kiváló:Budagyöngye, Mammut és a Széll Kálmán tér tömegközlekedéssel 10–20 perc alatt elérhető.A közelben játszóterek, iskolák, óvodák, bevásárlási és sportolási lehetőségek találhatók, a környék pedig stabil, értéktartó ingatlanpiacáról ismert.Ez a lakás valódi ritkaság Pasaréten: prémium minőség, inspiráló környezet és átgondolt belső tér egyetlen, időtálló értéket képviselő otthonban.
További adatok
Telekterület: -
Kert mérete: -
Erkély mérete: 8 m2
Felszereltség: -
Parkolás: -
Kilátás: udvari
Egyéb extrák:  
-
Hirdető adatai
Hirdető neve: Otthon Centrum
Kapcsolattartó: Pongrácz Rita
Hirdető telefonszáma: +36 70 388 6131
Honlap: -