Pest megye, Pomáz
 

Ingatlan adatai
Irányár: 92 500 000 Ft
Típus: ház
Kategória: eladó
Alapterület: 74 m2
Fűtés: gáz (cirko)
Állapota: -
Szobák száma: 3
Építés éve: 1980
Szintek száma: -
Részletes leírás
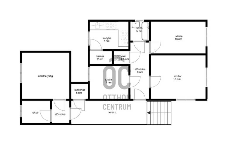
Pomáz Klisovác zöldövezeti családiházas környezetében a Mikszáth Kálmán utcában eladó egy 1980 környékén épült 74 nm-es alapterületű 3 szobás átlagos állapotú téglaház. A házban az utolsó felújításkor a 80-as évek végén lettek az ablakok műanyag hő és hangszigetelt ablakokra. A ház kívülröl kapott egy 5 cm-es dryvit szigetelést ami nem ér körbe. A ház hátsó részen egy cca. 26 nm-es bolt helység ( mellék épület ) van a házhoz építve a házhoz. Jelenleg az új cirkó kazán ide van elhelyezve. Az ingatlannak ez a része nem került szigetelésre. Jelenleg két szobábol áll és üzlethelységként funkcionált.Az épület karban tartott átlagosan jó állapotú. A fafödémes magastető faszerkezetű és beépíthető. A ház külső felülete kőporos vakolat.A 624 nm - es kertben két autó beállására van lehetőség.A környék rendezett. Az itt lakók szépen karban tartják lakóházaikat.Ne hagyja ki ezt a páratlan lehetőséget, hogy egy frissen a piacra került, jól alakítható otthonra tegyen szert Pomáz egyik legszebb részén!Célunk, hogy ügyfeleink számára a legmagasabb színvonalú, személyre szabott lakáshitel-megoldásokat nyújtsuk, maximális kényelmet és biztonságot garantálva. Bankfüggetlen hitelcentrumunk szakértői az ország összes bankjának és hitelintézetének ajánlatait versenyeztetik, díjmentesen, hogy Ön a legkedvezőbb feltételekkel juthasson lakáshitelhez. Tapasztalt munkatársaink az Ön igényeihez igazodva, előre egyeztetett időpontban, akár munkaidőn túl is rendelkezésére állnak, hogy minden kérdésére megnyugtató választ adjanak és segítsék Önt a döntésben.
További adatok
Telekterület: 620 m2
Kert mérete: 620 m2
Erkély mérete: -
Felszereltség: -
Parkolás: -
Kilátás: -
Egyéb extrák:  
-
Hirdető adatai
Hirdető neve: Otthon Centrum
Kapcsolattartó: Szász Endre
Hirdető telefonszáma: +36 70 469 3136
Honlap: -