Budapest, XI.kerület
 

Ingatlan adatai
Irányár: 89 900 000 Ft
Típus: lakás (panel)
Kategória: eladó
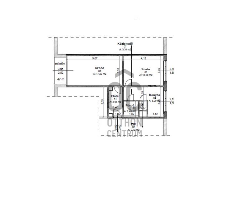
Alapterület: 48 m2
Fűtés: távfűtés
Állapota: -
Szobák száma: 2
Építés éve: 1970
Szintek száma: -
Részletes leírás
Fedezze fel az új otthonát az Allende parknál, a XI. kerületben! Ez a modern, felújítás alatt álló lakás már felújítás után azonnal költözhető.Egyedülálló, újragondolt alaprajzának köszönhetően praktikus terek és jól átgondolt elosztás várja az új lakót. A jó hír: ide csak bőröndöt kell hoznia, minden más már megoldott! Ideális választás azok számára, akik modern, kényelmes és azonnali költözést kívánnak. Tegye meg az első lépést új otthona felé még ma!Ez az ingatlan a \"Hűség csomag\" megbízási portfólióhoz tartozik. Részletek az Otthon Centrum weboldalán.
További adatok
Telekterület: -
Kert mérete: -
Erkély mérete: 4 m2
Felszereltség: -
Parkolás: -
Kilátás: udvari
Egyéb extrák:  
-
Hirdető adatai
Hirdető neve: Otthon Centrum
Kapcsolattartó: Opoldusz Soma
Hirdető telefonszáma: +36 70 716 9961
Honlap: -