Budapest, XVI.kerület
Rákosszentmihály 

Ingatlan adatai
Irányár: 257 000 000 Ft
Típus: ház
Kategória: eladó
Alapterület: 180 m2
Fűtés: egyéb
Állapota: új
Szobák száma: 5
Építés éve: 2024
Szintek száma: -
Részletes leírás
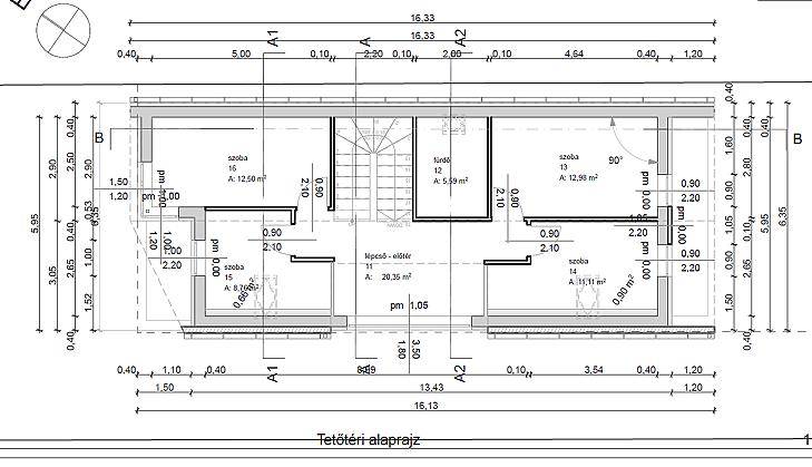
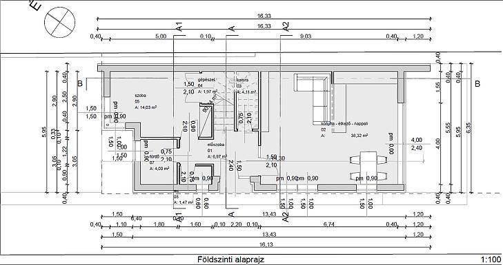
2024-ES ÉPÍTÉSŰ, MODERN 180 M2-ES, 5 SZOBÁS, KÖRBEJÁRHATÓ CSALÁDI HÁZ, 364 M2-ES TELKEN, SZÉLES AUTÓBEÁLLÁSI LEHETŐSÉGGEL.A HÁZ JELLEMZŐI:IDEÁLIS VÁLASZTÁS LEHET OLYAN VEVŐK SZÁMÁRA, AKIK KÖNNYEN KARBANTARTHATÓ KISEBB TELEKKEL RENDELKEZŐ ÖNÁLLÓ CSALÁDI HÁZAT KERESNEK.Tágas elrendezés: A ház 4 szobával, 2 fürdőszobával, és egy modern amerikai konyhás nappalival rendelkezik. A szobák és közösségi terek optimális elrendezése biztosítja a kényelmes mindennapokat.A fűtést modern hőszivattyús rendszer biztosítja padlófűtésen keresztül az egész házban. Ezen felül még 5 db hűtő fűtő klíma kerül felszerelésre. A kiváló minőségű szigetelés és a legújabb technológiák alkalmazása garantálják a ház energiahatékonyságát.A belső burkolatok, illetve szaniterek egyedileg választhatóak bizonyos ár kereten belül melyet az építtetővel lehet egyeztetni igény szerint magasabb kategóriát választani, melynek a többlet költségét a vevőt terheli.Várható átadás: 2026 nyara.KIVÁLÓ LOKÁCIÓ: Az ingatlan egy nyugodt, családbarát környéken található, mégis könnyen elérhető közlekedési lehetőségekkel. Iskolák, óvodák, üzletek és egyéb szolgáltatások is a közelben találhatók, így minden szükséges dolog kényelmesen elérhető.Pénzügyi lehetőségek: A ház banki hitellel is megvásárolható. Segítünk a legjobb hitelkonstrukció megtalálásában, és biztosítjuk a gyors, egyszerű ügyintézést. CSOK kedvezmény is igénybe vehető.Ár: 257.0 M Ft
További adatok
Telekterület: 364 m2
Kert mérete: 364 m2
Erkély mérete: -
Felszereltség: -
Parkolás: -
Kilátás: kertre néző
Egyéb extrák:  
-
Hirdető adatai
Hirdető neve: MPD Hungary Kft.
Kapcsolattartó: Szentmihályi Házak Ingatlan Kft.
Hirdető telefonszáma: +36704585029
Honlap: -