Pest megye, Biatorbágy
 

Ingatlan adatai
Irányár: 195 000 000 Ft
Típus: telek
Kategória: eladó
Alapterület: 1 168 m2
Fűtés: -
Állapota: -
Szobák száma: -
Építés éve: -
Szintek száma: -
Részletes leírás
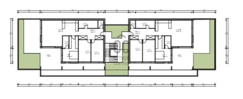
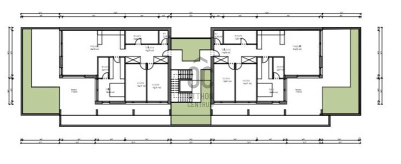
Biatorbágyon kínálunk építési telket, akár önálló cég központnak, iroda háznak, egészségügyi vagy oktatási intézménynek, lakásoknak..Az építési telek (jelenleg még egy bontandó ház van rajta) a Budapesthez közeli, kiemelkedően fejlődő Biatorbágy központi részén helyezkedik el a Városháza, Egészségház, Faluház közvetlen szomszédságában. Megközelítése kiváló mind gépkocsival, mind tömegközlekedési eszközzel, kitűnő fejlesztési potenciál van benne. Főbb paraméterek:Telek területe: 1168m2Építési övezet: VT-5, oldalhatáron állóMax. szintterületi mutató: 1,50 m2/m²Legnagyobb beépítettség földszinten: 50%Legnagyobb beépítettség terepszint alatt: 75%Min. zöldfelület: 20%Épület magasság: 8,0mElőzetes koncepcióterv:Pinceszinten teremgarázs (br. 500m2)Földszinten üzletek és parkoló (br.500m2)I.emeleten középen irodák és két lakás (br.500m2)II. emeleten két nagy tetőteraszos lakás (br.250m2)Összes br. beépített terület: kb. 1750m2Jelenleg ez rugalmasan változtatható, akár önálló cég központnak, iroda háznak, egészségügyi vagy oktatási intézménynek.- víz telken belül- áram telken belül- gáz telken belül- csatorna utcábanHívjon nehogy lemaradjon.
További adatok
Telekterület: 1 168 m2
Kert mérete: -
Erkély mérete: -
Felszereltség: -
Parkolás: -
Kilátás: -
Egyéb extrák:  
-
Hirdető adatai
Hirdető neve: Otthon Centrum
Kapcsolattartó: Csernok Ferenc
Hirdető telefonszáma: +36 70 716 9511
Honlap: -