Pest megye, Valkó
 

Ingatlan adatai
Irányár: 52 000 000 Ft
Típus: ház
Kategória: eladó
Alapterület: 93 m2
Fűtés: -
Állapota: új
Szobák száma: 4
Építés éve: 2025
Szintek száma: -
Részletes leírás
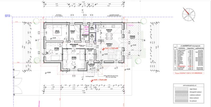
Valkón, az Petőfi utcában kínálunk eladásra egy új építésű, önálló családi házat, amely 1300 m²-es telken helyezkedik el.A ház nettó 93,89 m² hasznos alapterülettel rendelkezik, praktikus elrendezéssel és modern kivitelezéssel.Modern építés és minőségi alapanyagok– Falazat: 30-as nútféderes tégla– Födém: fa szerkezetű– Tető: antracit színű betoncserép– Homlokzat: 15 cm EPS hőszigeteléssel– Padlószigetelés: 10 cm Austrotherm AT-N100– Födémszigetelés: 25 cm ásványgyapot– Nyílászárók: 6 légkamrás, 3 rétegű üvegezésselA korszerű anyaghasználatnak köszönhetően a ház energiatakarékos és alacsony fenntartású lesz.Fűtés és energetika– Hőszivattyús fűtési rendszer (monoblokkos kivitel)– Teljes padlófűtés biztosítja az egyenletes hőérzetetVálasztható belső kialakításA burkolatok, szaniterek és ajtók a kivitelező által biztosított keretösszegen belül választhatók:– Hidegburkolat: 3.000 Ft/m²-ig– Melegburkolat: 3.000 Ft/m²-ig– Csaptelepek: 15.000 Ft/db– Kád vagy zuhany: 40.000 Ft– Beltéri ajtók: 35.000 Ft/dbIgény esetén természetesen magasabb kategóriájú anyagok is beépíthetők, a különbözet megfizetésével.Elektromos rendszer és előkészítések– Szobákban: 3 konnektor– Nappaliban: 4 konnektor + internet és kábeltévé kiállás– Konyhában: 6 konnektor– Világítás: helyiségenként 1-1 kiállás– Kábeltévé: előkészítés– Riasztó és kapumozgató rendszer előkészítésTovábbi információk– A teljes tervdokumentáció és műszaki leírás kérésre elérhető– A kivitelező korábbi házai referenciaként megtekinthetők– Várható átadás: 7 hónapon belülPénzügyi és támogatási lehetőségek– Ingyenes hiteltanácsadás és CSOK Plusz ügyintézés– Bankfüggetlen – Teljes körű, díjmentes ügyintézésIntor Ingatlan
További adatok
Telekterület: 1 295 m2
Kert mérete: 1 295 m2
Erkély mérete: 18 m2
Felszereltség: -
Parkolás: -
Kilátás: utcai
Egyéb extrák:  
-
Hirdető adatai
Hirdető neve: Intor Ingatlan Powered By RH
Kapcsolattartó: Salétros Dániel
Hirdető telefonszáma: +36 70 412 5816
Honlap: -