Pest megye, Tápióság
 

Ingatlan adatai
Irányár: 21 900 000 Ft
Típus: ház
Kategória: eladó
Alapterület: 21 m2
Fűtés: -
Állapota: felújítást igényel
Szobák száma: 1
Építés éve: 2000
Szintek száma: -
Részletes leírás
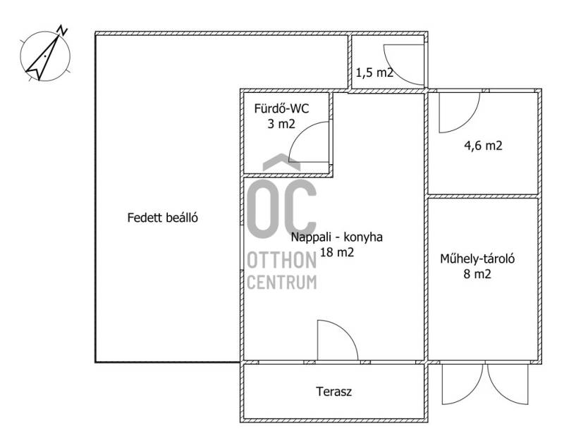
Megvételre kínálunk Tápióságon egy belterületi ingatlant, csendes, nyugodt környéken.Az ingatlan elosztása: nappali-konyha 18 m2, fürdő-wc 3 m2 és ezen kívül van még 3 kintről megközelíthető helység (1,5, 4,6 és 8 m2)A ház alatt 21 m2 pince található.Betonfödémes a ház, így a tetőtérben egy újabb szoba kialakítható.A szilikát téglából épült ingatlan szerkezetileg jó állapotban van, de esztétikai felújítást igényel.A telek összközműves!Ha további kérdése van az ingatlanról, keressen bizalommal.
További adatok
Telekterület: 900 m2
Kert mérete: 900 m2
Erkély mérete: 5 m2
Felszereltség: -
Parkolás: -
Kilátás: -
Egyéb extrák:  
-
Hirdető adatai
Hirdető neve: Otthon Centrum
Kapcsolattartó: Görög Roland
Hirdető telefonszáma: +36 70 388 6141
Honlap: -