Budapest, VI.kerület
 

Ingatlan adatai
Irányár: 690 984 Ft/hó
Típus: lakás (tégla)
Kategória: kiadó
Alapterület: 155 m2
Fűtés: gáz (cirko)
Állapota: -
Szobák száma: 5
Építés éve: 1918
Szintek száma: -
Részletes leírás
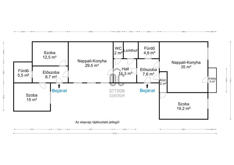
Bérbeadásra kínálunk egy 155 m²-es, tágas, jó állapotú, különleges hangulatú polgári lakást Budapest belvárosának egyik legelőkelőbb és legfrekventáltabb részén, közvetlenül az Operával szemben. A lakás egy patinás, szépen karbantartott téglaépület első emeletén található, a Művész kávéház épületében.Az ingatlan duplex elrendezésű azaz két lakrészes, nagyvonalú terekkel, 5 szobával, 2 fürdőszobával, külön WC-vel, valamint gázcirkó fűtéssel. A 315 cm-es belmagasság és a nagyméretű ablakok elegáns, világos és exkluzív életteret biztosítanak. A fogyasztások jelenleg közös mérésen futnak.Főbb adatok röviden-Méret: 155 m²-Elrendezés: duplex, 5 szoba-Vizesblokkok: 2 fürdőszoba + 1 külön WC-Bérleti díj: 1800 EUR / hó (ÁFA-mentes számlával)-Kaució: 2 hónap-Birtokbaadás: azonnal-Min. bérleti idő: 1 év-Fűtés: gáz cirkó-Klíma-Belmagasság: 315 cm-Lift: van de üzemen kívül jelenleg ( 1 emelet)-Dohányzás: nem megengedett-Kisállat: nem hozható-Fizetés: kizárólag EURAz ingatlan jól karbantartott, praktikus elrendezésű, különösen alkalmas:-hosszú távú lakhatásra,-reprezentatív otthon-irodának,-üzleti célra (pl. kreatív iroda, tanácsadó tér).A mérőórák jelenleg közösek.A tulajdonos cég, így a bérleti díjról minden hónapban ÁFA-mentes számla kerül kiállításra.A környék kiemelkedően vonzóA lakás közvetlenül az Opera épületével szemben helyezkedik el – Budapest egyik legszebb, kulturálisan legsokoldalúbb és turisztikailag legismertebb pontján. A lokáció megkerülhetetlen előnyei:A belváros közepe – minden percek alatt elérhető: kávézók, éttermek, üzletek, színházak, galériák.Kiváló közlekedés: metró, villamos, buszjáratok pár lépésre.Elegáns, rendezett környezet, kulturált lakóközösséggel.A környék nappal pezsgő, este is biztonságos, jól megvilágított, magas presztízsű.A városi panoráma és az Opera látványa különleges pluszt ad a lakás mindennapi hangulatához.A környék adottságai miatt az ingatlan üzleti célokra (iroda, rendelő, stúdió) is kiváló választás, ugyanakkor élhető, otthonos, kényelmes lakóteret is biztosít.Amennyiben a belváros egyik legkülönlegesebb pontján található, reprezentatív és sokoldalúan használható lakás felkeltette érdeklődését, készséggel állok rendelkezésére további információval vagy megtekintés egyeztetésével kapcsolatban.
További adatok
Telekterület: -
Kert mérete: -
Erkély mérete: -
Felszereltség: -
Parkolás: -
Kilátás: utcai
Egyéb extrák:  
-
Hirdető adatai
Hirdető neve: Otthon Centrum
Kapcsolattartó: Major Balázs
Hirdető telefonszáma: +36 70 388 5536
Honlap: -