Pest megye, Mogyoród
 

Ingatlan adatai
Irányár: 980 000 Ft/hó
Típus: ház
Kategória: kiadó
Alapterület: 121 m2
Fűtés: gáz (cirko)
Állapota: -
Szobák száma: 4
Építés éve: 2020
Szintek száma: -
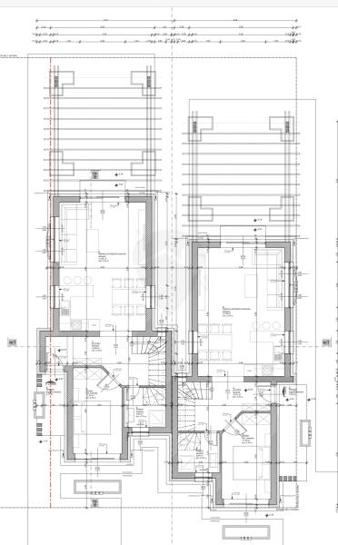
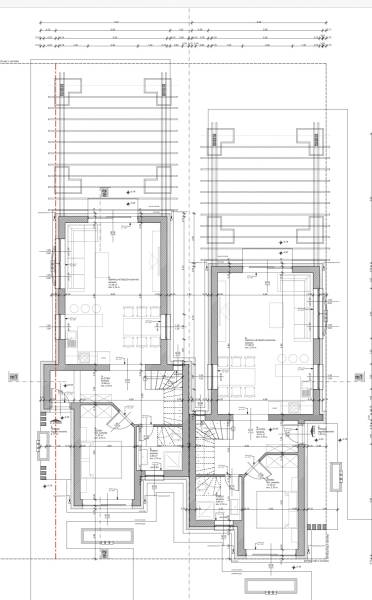
Részletes leírás
RITKA! Szerződéshez szükséges közjegyzői szerződés szükséges, bérleti díj + 2 havi kaució. Ha olyan otthont keresel, ahol a kertkapcsolat természetes, a szomszéd mosolyog, és a gyerekek szabadon bicikliznek az utcában – akkor megtaláltad.A Sissy Villa Park nem csak egy lakópark – egy életérzés. Amerikai hangulat Mogyoródon: kerítés nélküli házak, rendezett előkertek, közösségi programok, családias légkör. Itt a lakók ismerik egymást, figyelnek a másikra, mégis megmarad a privát tér.A kínált ingatlan egy 2020-ban épült ikerházfél, de külön helyrajzi számon, jogi és funkcionális értelemben is önálló családi ház. Főbb jellemzők: • Nappali + 3 hálószoba • 2 teljes értékű fürdőszoba • Modern gázcirkós fűtés • Praktikus alaprajz • Intim kertkapcsolat • Kellemes terasz Az ikerfelek csupán egy rövid falszakaszon érintkeznek, a kivitelezés pedig gondoskodik a zajmentes, nyugodt életről. Az építéskori teljes tervdokumentáció rendelkezésre áll. A megközelítés Budapestről kb 15-20p autóval. Ha egy barátságos, mégis elegáns környezetre vágysz, ahol a nyugalom és a közösség kéz a kézben jár – akkor ez az otthon neked szól.
További adatok
Telekterület: 350 m2
Kert mérete: 350 m2
Erkély mérete: 38 m2
Felszereltség: -
Parkolás: -
Kilátás: kertre néző
Egyéb extrák:  
-
Hirdető adatai
Hirdető neve: Intor Ingatlan Powered By RH
Kapcsolattartó: Salétros Dániel
Hirdető telefonszáma: +36 70 412 5816
Honlap: -