Pest megye, Cegléd
 

Ingatlan adatai
Irányár: 64 900 000 Ft
Típus: lakás (újépítésű)
Kategória: eladó
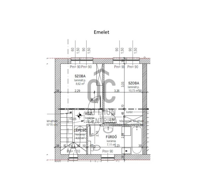
Alapterület: 73 m2
Fűtés: -
Állapota: új
Szobák száma: 3
Építés éve: 2025
Szintek száma: -
Részletes leírás
Nappali és 2 szoba, terasz, beálló, tárolóEgy komplex lakást ajánlok, nemcsak lakást, hanem hozzá ZÁRT UDVARI PARKOLÓT, TÁROLÓT is kapsz, de nézzük a részleteket!Amennyiben Cégléden nézegetünk ingatlant, akkor már a használt, kicsit korszerűtlen, felújítandó ingatlanokra is látjuk a 700-800.000 Ft/nm árat.Ezen lakás:- Új építésű- Kifejezetten korszerű aanyagokból- Megújúló energivál,- 3 %-os hitelre is alkalmas- Hőszivattyús fűtéssel,- Nappali és 2 szobával,- Terasszal,-Zárt udvari gépkocsiparkolóval kerül átadásra, több mint 15 éve működő építőipari cég kivitelezésében.Ammenyiben kíváncsi vagy a részletekrte, tervdokumentációkra, keressél bátran!Köszönöm!Hitelre van szüksége? Tudunk segíteni!Az Otthon Centrum az ország egyik legnagyobb és legmegbízhatóbb hitelközvetítőjeként, teljes körű és díjmentes hitelügyintézéssel, biztosításkötéssel áll rendelkezésére!Kérje személyre szabott ajánlatunkat Kollégáinktól!
További adatok
Telekterület: -
Kert mérete: -
Erkély mérete: 5 m2
Felszereltség: -
Parkolás: -
Kilátás: udvari
Egyéb extrák:  
-
Hirdető adatai
Hirdető neve: Otthon Centrum
Kapcsolattartó: Kovács László
Hirdető telefonszáma: +36 70 469 3826
Honlap: -