Pest megye, Őrbottyán
 

Ingatlan adatai
Irányár: 169 900 000 Ft
Típus: ház
Kategória: eladó
Alapterület: 168 m2
Fűtés: gáz (cirko)
Állapota: új
Szobák száma: 5
Építés éve: 2005
Szintek száma: -
Részletes leírás
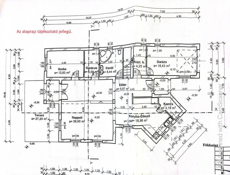
Esztétikus és magas felszereltségű családi ház eladó Őrbottyán központjában!Az ingatlan egyedi tervek alapján épült 2005-ben, egy összközműves, 991 nm-es telekre. A 168 nm-es, 5 szobás ház tégla építésű, 5 cm hőszigeteléssel ellátott. Fűtéséről és melegvíz-ellátásról kondenzációs gázkazán gondoskodik, a közös helyiségekben és fürdőszobákban padlófűtéssel, hálószobákban radiátor hőleadókkal. A napelem rendszernek és a ház adottságainak köszönhetően a rezsi rendkívül alacsony.A földszinten hűtő-fűtő klíma, a tetőtérben rejtett beltéri egységgel rendelkező klíma biztosítja a kellemes hőmérsékletet.További műszaki adatok: - műanyag nyílászárók alumínium redőnyökkel és szúnyoghálóval- biztonsági bejárati ajtó,- magas minőségű beltéri ajtók, burkolatok- riasztó és kamera rendszer- BWT vízlágyító rendszer- elektromos kapu és garázsajtó- öntözőrendszer a kertben- gépesített konyha- jacuzzi- beépített szekrények- dupla mosdós fürdőszobák- fedett 26 nm-es terasz- fedett, dupla kocsi beálló- gondozott növényzet- térkövezett udvarRöviden az otthonról:A házba belépve a közlekedőn át egy ízlésesen kialakított és meleg hangulatú térbe érkezünk, ahol 2 lépcsőfokos szinteltolással elkülönül a nagy étkező-konyha rész és a galériás kialakítás miatt, tágas és világos terekkel rendelkező, otthonos nappali. A földszinten helyett kapott egy hálószoba saját gardróbbal, fürdőszoba WC-vel, háztartási helyiség, ahonnan közvetlen átjárás vezet a 16 nm-es garázsba.A nappali impozáns eleme sötétszínű, kényelmes lépcső, amely a tetőtérbe vezet. Itt 3 hálószoba és egy zuhanyzó+WC kapott helyet, kis előtérrel. A szobák hangulata a tető összetett kialakítása miatt igazi elvonulós, pihenős, privát helyek a család kisebb-nagyobb tagjai számára.Télen-nyáron élvezhetjük a nappaliból és az udvarról is megközelíthető nagy, fedett teraszt, ami jó beszélgetések, pihenések ideális helyszíne.Az udvar belső részében fedett parkolási lehetőség is rendelkezésre áll, ezen felül az utcafronton található fűtött garázs és további parkolóhelyek állnak rendelkezésre kapun belül. A telek hátsó, füves része ideális helyszín kerti-sütögető kialakítására, gyerekeknek játszani, konyhakertnek és család négylábú tagjai is örömüket lelik benne.Elhelyezkedés:Őrbottyán Pest vármegyében, a fővárostól mindössze 25 kilométerre, Veresegyház és Vác között található, nyugodt, zöldövezeti település, kiváló közlekedéssel Budapest irányába.Autóval az M2-es autóúton, illetve a Budapest–Vác vasútvonalon kényelmesen megközelíthető; a vonat kb. 35–40 perc alatt a Nyugati pályaudvarra ér.A településen van óvoda, bölcsőde, iskola, orvosi rendelő, posta, gyógyszertár, kisebb éttermek és több bevásárlási lehetőség is. Őrbottyán rendezett, biztonságos, családbarát környezetet kínál, ahol a kertvárosi nyugalom és a főváros közelsége ideálisan találkozik.Ha felkeltettem érdeklődését hívjon bizalommal. Amiben segíteni tudjuk ingatlanvásárlását:- jogi háttér- földhivatali ügyintézés- ingyenes, bankfüggetlen hitelügyintézés (CSOK és Babaváró ügyintézése is.)- energetikai tanúsítvány elkészítése- biztosítás- belsőépítész
További adatok
Telekterület: 991 m2
Kert mérete: 991 m2
Erkély mérete: 26 m2
Felszereltség: -
Parkolás: -
Kilátás: udvari
Egyéb extrák:  
-
Hirdető adatai
Hirdető neve: GDN Ingatlanhálózat
Kapcsolattartó: Floch Ildikó
Hirdető telefonszáma: +36-20-397-9972
Honlap: -