Pest megye, Újlengyel
 

Ingatlan adatai
Irányár: 68 800 000 Ft
Típus: lakás (újépítésű)
Kategória: eladó
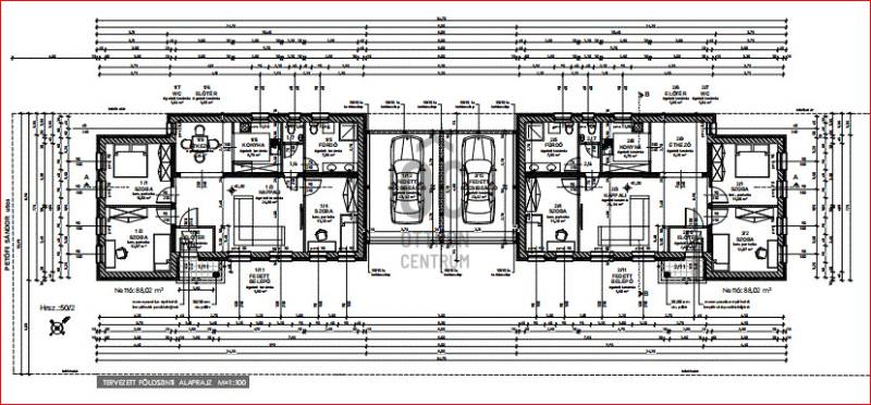
Alapterület: 88 m2
Fűtés: -
Állapota: új
Szobák száma: 4
Építés éve: 2026
Szintek száma: -
Részletes leírás
Az ingatlan főbb jellemzői:- nappali - konyha + 3 hálószoba- sávalapozás- 30 cm vastag téglafal fal készült H 10-es habarcsba falazva \" 20 cm-es hőszigetelésfödém szerkezet : - az épületen fa gerendás födém lesz, a terven megadott méretű fenyő gerendákkal- kondenzációs gázkazán (BAXI) , hőszivattyú- klíma előkészítés- cserépfedés- műanyag nyílászáró, redőnnyel- ytong válaszfal- CPL ajtókburkolatok : - meleg padlós helyiségnél laminált parketta, hidegpadlós helyiségeknél kerámia burkolat- H tarifás óra kiépítése- beállási lehetőség az udvarbaIrodánkban teljes körű ügyintézéssel várjuk bankfüggetlen tanácsadónknál.A hirdetésben szereplő információk a megbízótól származnak, pontosságukért felelősséget nem vállalunk.
További adatok
Telekterület: -
Kert mérete: -
Erkély mérete: -
Felszereltség: -
Parkolás: -
Kilátás: udvari
Egyéb extrák:  
-
Hirdető adatai
Hirdető neve: Otthon Centrum
Kapcsolattartó: Törökné Varga Rita
Hirdető telefonszáma: +36 70 388 5251
Honlap: -