Bács-Kiskun megye, Tiszaalpár
 

Ingatlan adatai
Irányár: 24 600 000 Ft
Típus: ház
Kategória: eladó
Alapterület: 140 m2
Fűtés: gáz (cirko)
Állapota: -
Szobák száma: 5
Építés éve: 1966
Szintek száma: -
Részletes leírás
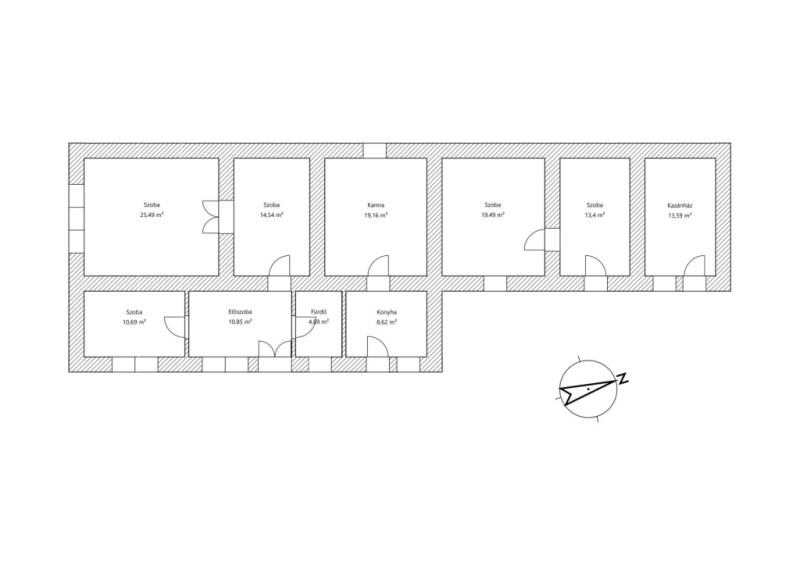
Otthonok és megoldások!Tiszaalpár központjában két utcára nyíló, osztható családi ház eladó.Két helyrajzi számon fekvő, két utcáról is megközelíthető, összesen 720m²-es telken eladó egy 141 m²-es vegyes falazatú családi ház. Az ingatlan kiváló lehetőséget rejt magában: két külön bejáratú lakóegységgé alakítható, így akár két generáció együttélésére vagy befektetésre is alkalmas.A fűtés gáz és vegyestüzelésű kazánnal, radiátoros rendszeren keresztül történik.Az épület részben szigetelt, teljesen közművesített, és rövid időn belül birtokba vehető.Főbb jellemzők:- 141 m² lakótér, 5 szoba- két helyrajzi szám, két utcafront- leválasztható, két önálló ház is kialakítható- gáz és vegyestüzelésű kazán, radiátoros központi fűtés- teljesen közművesített- részben szigetelt épület- gyorsan birtokba vehetőKiváló elhelyezkedése miatt minden fontos szolgáltatás néhány perces sétával elérhető.Akár összeköltöző családtagoknak, akár befektetőknek remek választás!
További adatok
Telekterület: 720 m2
Kert mérete: 720 m2
Erkély mérete: -
Felszereltség: -
Parkolás: -
Kilátás: udvari
Egyéb extrák:  
-
Hirdető adatai
Hirdető neve: GDN Ingatlanhálózat
Kapcsolattartó: Kocsis Zoltán
Hirdető telefonszáma: +36-30-667-3612
Honlap: -