Pest megye, Érd
 

Ingatlan adatai
Irányár: 139 900 000 Ft
Típus: ház
Kategória: eladó
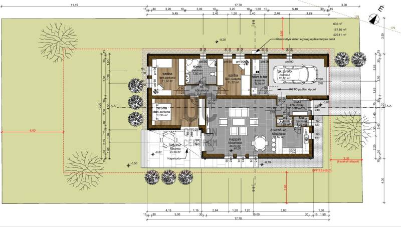
Alapterület: 128 m2
Fűtés: -
Állapota: új
Szobák száma: 4
Építés éve: 2025
Szintek száma: -
Részletes leírás
3%-OS HITELEladó egy földszintes, nettó 128(bruttó 157) nm-es N + 3 szobás családi ház, 630 nm-es telken.A ház 30-as POROTHERM téglából épül, 15 cm-es DRYVIT szigeteléssel. A nyílászárók háromrétegű üvegezésűek, redőnnyel, szúnyoghálóval felszereltek.A fűtést hőszivattyú (8 KW) biztosítja, padlófűtés hőleadással.A ház kulcsrakész állapotban kerül átadásra. A burkolatokat, szanitereket, valamint a beltéri ajtókat az új tulajdonos választhatja ki. A parkolásra egyállású garázs valamint egy felszíni kocsibeálló áll majd rendelkezésre.Az infrastruktúrája jó, óvoda, iskola, bevásárlási lehetőség autóva pár perc alatt elérhető.Valamint a buszmegálló 10 perc sétatávolságra található (Kelenföld- Érd, Városközpont)Átadás 2026. JanuárHa megfelelő lehet az Ön részére ez az ingatlan, kérem hívjon, egyeztessünk időpontot.Az Otthon Centrum irodáiban hitel tanácsadó segíti az igénylés teljes folyamatát, hitel felvétel esetén megkeresi az Önnek legmegfelelőbb ajánlatot a bankok kínálatából.Vegye igénybe ingyenes szolgáltatásainkat!
További adatok
Telekterület: 630 m2
Kert mérete: 630 m2
Erkély mérete: 25 m2
Felszereltség: -
Parkolás: -
Kilátás: -
Egyéb extrák:  
-
Hirdető adatai
Hirdető neve: Otthon Centrum
Kapcsolattartó: Mészárosné Sőregi Mara
Hirdető telefonszáma: +36 70 461 9656
Honlap: -