Pest megye, Kiskunlacháza
 

Ingatlan adatai
Irányár: 70 000 000 Ft
Típus: ház
Kategória: eladó
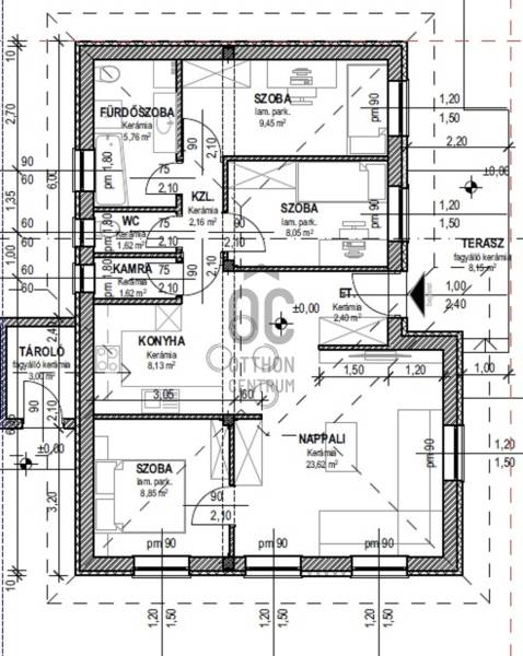
Alapterület: 72 m2
Fűtés: -
Állapota: új
Szobák száma: 4
Építés éve: 2025
Szintek száma: -
Részletes leírás
Kiskunlacháza újépítésű ikerház1 HÓNAPON BELÜL KÖLTÖZHETŐHÁZ:- br. 85 nm, nettó 72 nm nappali + 3 szoba- 2025-ben épül- minőségi anyagokból- Porotherm tégla + dryvit szigetelés (12 cm ), Bramac tetőcserép- biztonsági bejárati ajtó, 3 rétegű műanyag nyílászárók- hőszívattyús fűtésrendszer - padlófűtés- remek elosztású , napfényesTELEK:- 320 nm telek- autóbeálló, járdák- körbekerítveElhelyezkedés:- Budapesttől 30 percre- központi elhelyezkedés- Éttermek, bevásárlási lehetőség, óvoda, iskola valamint a busz kényelmes sétával elérhetőHITEL ÉS CSOK igényelhető! Minden hivatalos ügyintézésben segítünk!20 %-TÓL MÁR MOST FOGLALHATÓ!ÁTADÁS: 2025.12 vége
További adatok
Telekterület: 320 m2
Kert mérete: 320 m2
Erkély mérete: -
Felszereltség: -
Parkolás: -
Kilátás: -
Egyéb extrák:  
-
Hirdető adatai
Hirdető neve: Otthon Centrum
Kapcsolattartó: Andreopulos Niki
Hirdető telefonszáma: +36 70 716 8706
Honlap: -