Budapest, VII.kerület
 

Ingatlan adatai
Irányár: 149 900 000 Ft
Típus: lakás (tégla)
Kategória: eladó
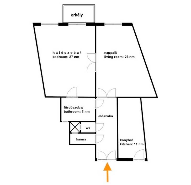
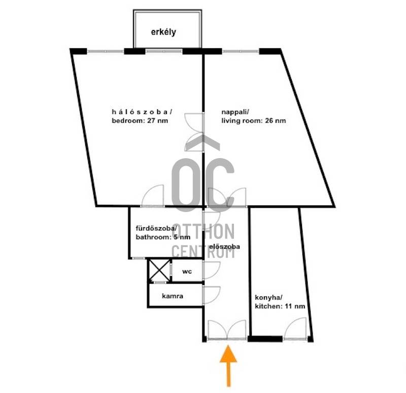
Alapterület: 83 m2
Fűtés: elektromos
Állapota: -
Szobák száma: 2
Építés éve: 1904
Szintek száma: -
Részletes leírás
Fedezze fel ezt a különleges lehetőséget, amely fiatal felnőttek számára ideális választás lehet, akár saját lakás kereséséről, akár befektetési céllal gondolkodik. Budapest 07. kerületének szívében, a Belső Erzsébetváros egyik legfelkapottabb utcájában, a Kertész utcában található ez a kiváló állapotú, használt lakás, amely minden igényt kielégít. A műszakilag és esztétikailag is felújított, nagypolgári stílusú ingatlan alapterülete 83 négyzetméter, és két tágas szobával rendelkezik, amelyeket a nagy belmagasság és a világos, napfényes atmoszféra tesz még vonzóbbá. A gépesített konyhával rendelkező erkélyes lakás egy csendes utcában helyezkedik el, ahol a központi elhelyezkedés előnyeit maximálisan kihasználhatja. Az ingatlanhoz tartozó tágas nappali tökéletes helyszín a baráti összejövetelekhez, míg a modern fürdőszoba minden kényelmet biztosít a mindennapokhoz. A fűtés Bosch elektromos cirkó rendszerrel, míg a hűtés klímával megoldott, így a lakás minden évszakban kellemes hőmérsékletet biztosít. Az eklektikus épület a múlt század elején épült, karbantartott lifttel rendelkezik. A közös költség 23.400 Ft havonta.A környék ellátottsága kiváló, hiszen számos bolt, étterem, kávézó és szórakozóhely található a közelben, így a mindennapi szükségletek könnyedén kielégíthetők. Ez a tehermentes ingatlan remek lehetőség fiatal felnőttek számára, akik szeretnék élvezni a belvárosi életstílust, miközben a csendes környék nyugalmát is megkapják. A lakás nemcsak lakóhelyként, hanem befektetési célú ingatlan formájában is kiváló választás, hiszen a Belső Erzsébetváros folyamatosan fejlődő és keresett terület. A közlekedési csomópont közelsége miatt a kitűnő közlekedés biztosítja, hogy a város bármely része gyorsan és egyszerűen elérhető. A tömegközlekedési lehetőségek széles választéka, beleértve a metró- és buszjáratokat, lehetővé teszi, hogy kényelmesen közlekedjen a városban. Bővebb információ vagy kérdés esetén várom hívását.
További adatok
Telekterület: -
Kert mérete: -
Erkély mérete: -
Felszereltség: -
Parkolás: -
Kilátás: utcai
Egyéb extrák:  
-
Hirdető adatai
Hirdető neve: Otthon Centrum
Kapcsolattartó: Visegrádi Ágnes
Hirdető telefonszáma: +36 70 461 9766
Honlap: -