Pest megye, Budakeszi
 

Ingatlan adatai
Irányár: 58 000 000 Ft
Típus: ház
Kategória: eladó
Alapterület: 52 m2
Fűtés: gáz (cirko)
Állapota: -
Szobák száma: 3
Építés éve: 1950
Szintek száma: -
Részletes leírás
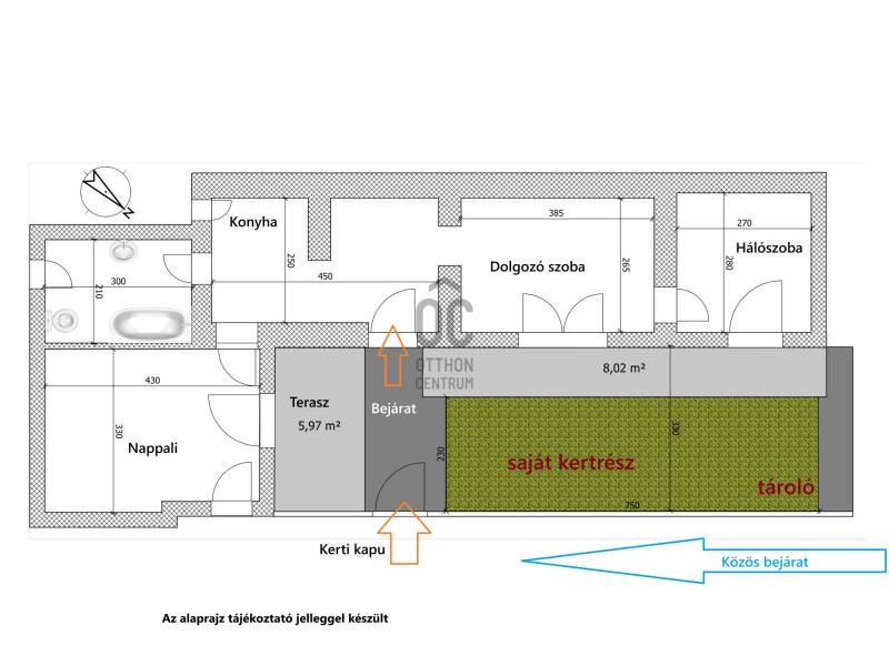
Képzeld el, hogy egy olyan otthonra találsz, ami nemcsak a mindennapjaidat, hanem az életedet is megváltoztatja! Ez a frissen felújított, 51,5 nm-es, háromszobás lakás Budakeszi központjában, a Fő utcán vár rád, és mindent megad, amire egy fiatal felnőttnek szüksége lehet. Az ingatlan kiváló állapotban van, így azonnal költözhető, és tehermentes, így gyorsan birtokba veheted és a OSP hitelt is feltudod használni a vásárláskor.Modern designnal rendelkezik, LED hangulatvilágítással és motoros redőnyökkel felszerelve, ami nemcsak stílusos, hanem a kényelmedet is szolgálja.Az Fisotech okos otthon rendszer lehetővé teszi, hogy a legújabb technológiát kihasználva éld mindennapjaidat, míg a világos és napfényes szobákban mindig jókedvűen ébredhetsz. Az elkerített kertrész 40 nm és terasz mérete 6 nm, ahol a reggeli kávédat vagy a délutáni pihenésedet élvezheted a friss levegőn. A kerti tároló pedig praktikus megoldást kínál a kerti eszközeidnek. Budakeszi központi elhelyezkedése miatt a környék ellátottsága kiváló. Bolt, iskola, orvosi rendelő és számos szórakozási lehetőség mind a közelben található. A közlekedési csomópont közelsége miatt kitűnő közlekedési lehetőségeid lesznek, így a főváros könnyedén elérhető, legyen szó autóról vagy tömegközlekedésről.A környék biztonságos és csendes, ideális környezetet biztosít a pihenéshez és a feltöltődéshez. Ez az ingatlan nemcsak egy otthon, hanem egy lehetőség is! Képzeld el, ahogy a barátaiddal a kertben grillezel, vagy egy nyugodt estét töltesz el a teraszon, miközben a nap lenyugszik. Ráadásul a kisállattal költözhető lehetőség még vonzóbbá teszi ezt a remek ajánlatot, hiszen a szeretett házi kedvenced is veled tarthat az új kalandokban. Ez a lakás nem csupán egy ingatlan, hanem egy lehetőség arra, hogy egy olyan helyet találj, ahol a mindennapjaidat élvezheted.Amennyiben kérdésed van, vagy szeretnéd megtekinteni az ingatlant, hívj és megbeszéljük a részleteket!Segítséget nyújtunk a vásárláshoz pénzügyi szakembereink bankfüggetlen pénzügyi termékkínálatával, valamint ingatlan szakjogászunk biztosítja a problémamentes vásárlást.akár #OSP Otthon Start Program hitellel is megvásárolhatóEz az ingatlan a \"Felező csomag\" megbízási portfólióhoz tartozik. Részletek az Otthon Centrum weboldalán.
További adatok
Telekterület: 115 m2
Kert mérete: 115 m2
Erkély mérete: 6 m2
Felszereltség: -
Parkolás: -
Kilátás: kertre néző
Egyéb extrák:  
-
Hirdető adatai
Hirdető neve: Otthon Centrum
Kapcsolattartó: Polgár Péter
Hirdető telefonszáma: +36 70 716 9831
Honlap: -