Vas megye, Szentgotthárd
 

Ingatlan adatai
Irányár: 44 500 000 Ft
Típus: ház
Kategória: eladó
Alapterület: 81 m2
Fűtés: egyéb
Állapota: -
Szobák száma: 2
Építés éve: 1950
Szintek száma: -
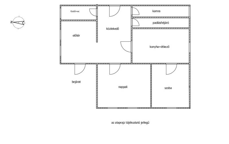
Részletes leírás
Fedezze fel ezt a kivételes lehetőséget Szentgotthárd csendes, de jól megközelíthető részén, Rábakethelyen, ahol egy 81 négyzetméteres, használt családi ház várja új tulajdonosát. Ideális választás középkorúak számára, akik egy otthont keresnek, ahol a nyugalom és a természet közelsége egyaránt garantált. Az ingatlan egy tágas nappalival rendelkezik, amely a családi élet középpontja lehet, és két kényelmes szobával, valamint egy fürdőszobával bővül, így elegendő helyet biztosít a mindennapi élethez. A ház állapota átlagos, ami lehetőséget ad arra, hogy saját ízlésére formálja, és a bővítési lehetőségek révén még inkább személyre szabhatja új otthonát. A vegyes fűtési rendszer, amely cserépkályhát is magában foglal, nemcsak gazdaságos, hanem a téli hónapokban is kellemes meleget biztosít. A telek mérete 1665 négyzetméter, amely lehetőséget ad a kertészkedésre, pihenésre vagy akár egy kis játszóház kialakítására is. A környék ellátottsága kiváló, hiszen mindössze néhány percre találhatóak boltok, gyógyszertárak és intézmények, amelyek a mindennapi élethez szükségesek. A helyi közlekedés is kedvező, hiszen a város tömegközlekedési hálózata lehetővé teszi, hogy könnyedén elérje a város többi részét, valamint a környező településeket is. Szentgotthárd és környéke nemcsak a természeti szépségekkel büszkélkedhet, hanem biztonságos és csendes lakóövezeteivel is, amely ideális választás lehet családok számára. A város gazdag kulturális programokban és szabadidős lehetőségekben, így mindenki megtalálhatja a számára legmegfelelőbb kikapcsolódást. Ez az ingatlan nem csupán egy ház, hanem egy lehetőség arra, hogy egy új életet kezdjen egy nyugodt, barátságos környezetben. Amennyiben kérdései merülnének fel, vagy további információkra lenne szüksége, bizalommal kereshet minket, hogy segíthessünk Önnek megtalálni álmai otthonát!
További adatok
Telekterület: 1 665 m2
Kert mérete: 1 665 m2
Erkély mérete: -
Felszereltség: -
Parkolás: -
Kilátás: -
Egyéb extrák:  
-
Hirdető adatai
Hirdető neve: Otthon Centrum
Kapcsolattartó: Tóth Éva
Hirdető telefonszáma: +36 70 412 5241
Honlap: -