Pest megye, Monor
 

Ingatlan adatai
Irányár: 98 000 000 Ft
Típus: ház
Kategória: eladó
Alapterület: 95 m2
Fűtés: -
Állapota: új
Szobák száma: 5
Építés éve: 2026
Szintek száma: -
Részletes leírás
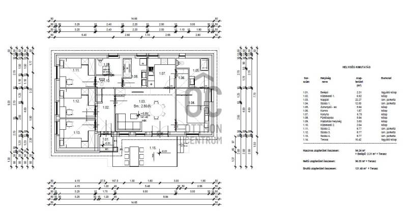
Tervezze meg otthonát!A lefoglalás időpontjától függően 2026 végén/2027 elején átadásra kerülő ÚJ ÉPÍTÉSŰ önálló családi ház leköthető Monoron, a vasútállomástól és bevásárlási lehetőségektől séta távolságban.Szintszám: az építendő ház földszintes.Házméret: min. 95 nm (nettó, falakkal körülvett lakóterület!)Szobaszám: igény szerintTelekméret: 700 nmAz alaprajz, az igényeknek megfelelően kerül kialakításra. A hirdetésben feltüntetett alaprajz és látványterv a figyelem felkeltést szolgálják, a kivitelező előző munkáinak dokumentációi.A kivitelezési ár tartalmazza a közművesítést, a tervezést és a (konyhabútoron kívüli) kulcsra kész családi házat egy 15 nm-es terasszal, egy 21 nm-es nyitott gépkocsi beállóval, járdával és kerítéssel.Az építés az alábbi általános műszaki jellemzőket tartalmazza:A ház 30 cm-es téglából épül, külső fala 15 cm szigetelést kap. Az aljzat szintén szigetelésre kerül, ahogyan a lábazat is. A padlófűtést hőszivattyú biztosítja. A műanyag nyílászárók 3 rétegű hőszigetelt üvegezéssel épülnek be, a külső ablakpárkányok mészkőből készülnek. Hidegburkolatok 8500 ft/nm, melegburkolatok 6500 ft/nm, beltéri ajtók 65000 ft/db áron történnek beszámításra. A fürdőszobák (az ajánlat két fürdőszobára szól) szaniterekkel és csaptelepekkel ellátva kerülnek átadásra (értékegyeztetés alapján), a falak festése (a kiválasztott színnel) diszperziós falfestékkel történik. A ház alap riasztóval történő ellátása is a felszereltség része. Az épület járdával, a telek kerítéssel (utcafronton is!), tereprendezett módon kerül átadásra.Ahogyan az alaprajz véglegesítését, úgy a szerkezetkész állapot után a burkolatok, szaniterek, és más beépítésre váró anyagok színét, minőségét is, a vevő határozhatja meg sőt, az alap felszereltségen túl, az egyedi igények megvalósítására (az elektromos redőnytől az okos otthonig) is van lehetőség.Kitűnő ár-érték arány, rugalmasság, referencia. Teljes hitel és támogatás ügyintézés, valamint kedvezményes ügyvédi szolgáltatás!Ha felkeltettem érdeklődését, várom hívását!
További adatok
Telekterület: 700 m2
Kert mérete: 700 m2
Erkély mérete: 15 m2
Felszereltség: -
Parkolás: -
Kilátás: -
Egyéb extrák:  
-
Hirdető adatai
Hirdető neve: Otthon Centrum
Kapcsolattartó: Tőke Zoltán
Hirdető telefonszáma: +36 70 716 9386
Honlap: -