Budapest, VIII.kerület
 

Ingatlan adatai
Irányár: 149 000 000 Ft
Típus: lakás (tégla)
Kategória: eladó
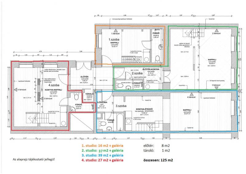
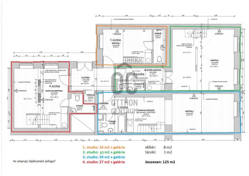
Alapterület: 125 m2
Fűtés: gáz (cirko)
Állapota: -
Szobák száma: 4
Építés éve: 1909
Szintek száma: -
Részletes leírás
Eladó NÉGY APARTMANBÓL álló lakás a Palotanegyedben, a Mária utca és az Üllői út sarkán.Az ingatlan 125 m2-es, I. emeleti, egy századfordulós, liftes épületben található.Jelenleg rövidtávú kiadással történik a hasznosítása, az apartmanok 39 m2 + galéria, 37 m2 + galéria, 27 m2 + galéria és 16 m2 + galéria nagyságúak.Minden apartmanhoz saját fürdőszoba és konyha tartozik. Kettőnek az ablakai a Mária utcára, kettőnek pedig az udvar felé néznek.Kitűnő közlekedési adottságok, 4-6-os villamos és a kék metró megállója fél perc sétára található.Egyetemek, bevásárló központ, éttermek és kávézók a közvetlen közelben találhatók.
További adatok
Telekterület: -
Kert mérete: -
Erkély mérete: -
Felszereltség: -
Parkolás: -
Kilátás: utcai
Egyéb extrák:  
-
Hirdető adatai
Hirdető neve: Otthon Centrum
Kapcsolattartó: Zala György
Hirdető telefonszáma: +36 70 716 8961
Honlap: -