Pest megye, Cegléd
 

Ingatlan adatai
Irányár: 56 500 000 Ft
Típus: ház
Kategória: eladó
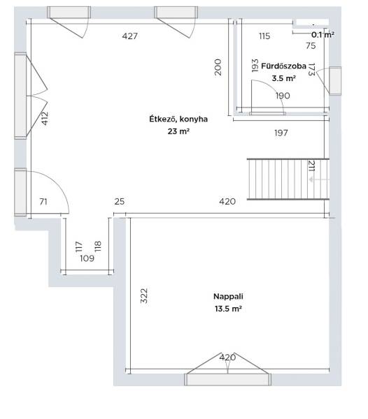
Alapterület: 56 m2
Fűtés: -
Állapota: -
Szobák száma: 2
Építés éve: 1990
Szintek száma: -
Részletes leírás
Cegléden, a strand és aquapark szomszédságában, zöldövezeti környezetben kínálunk eladásra egy 56 nm alapterületű, galériázott, teljes körűen felújított (2025) családi házat, 12,5 nm-es pincével.Az ingatlan jelenleg gazdasági épületként nyilvántartott, lakóházzá minősítése folyamatban van, így Ön dönthet:vendégházként hasznosítja a kiemelkedő turisztikai adottságokkal rendelkező környéken,vagy saját otthonként élvezi a nyugalmat és a zöld környezetet.Műszaki tartalom:- Falazat: szilikát + ytong- Tető: 2×15 cm kőzetgyapot szigetelés- Homlokzat: 20 cm AUSTROTHERM hungarocell szigetelés- Fűtés–hűtés: klíma, H-tarifa kiépítve- Extra: 12,5 nm pince, tárolásra vagy akár hobbyhelyiségnek is ideálisEz a ház egyaránt szól azokhoz, akik biztonságos, jövedelmező befektetést keresnek, és azokhoz, akik a nyugalmat, a természet közelségét és a modern, energiatakarékos otthon kényelmét részesítik előnyben.
További adatok
Telekterület: 1 260 m2
Kert mérete: 1 260 m2
Erkély mérete: -
Felszereltség: -
Parkolás: -
Kilátás: -
Egyéb extrák:  
-
Hirdető adatai
Hirdető neve: Otthon Centrum
Kapcsolattartó: Kissné Varga Mónika
Hirdető telefonszáma: +36 70 716 9541
Honlap: -