Budapest, I.kerület
 

Ingatlan adatai
Irányár: 65 000 000 Ft
Típus: lakás (tégla)
Kategória: eladó
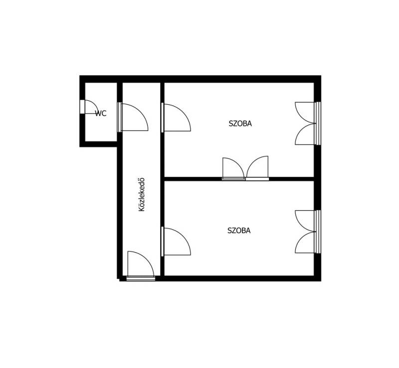
Alapterület: 41 m2
Fűtés: távfűtés
Állapota: -
Szobák száma: 2
Építés éve: 1934
Szintek száma: -
Részletes leírás
Eladó földszinti, 2 szobás lakás a Krisztina körúton – rendelőként használt, kiváló közlekedésselBudapest I. kerületében, a frekventált Krisztina körúton kínálunk megvételre egy jó állapotú, földszinti, 2 szobás lakást, amely jelenleg rendelőként üzemel.Az ingatlan egy rendezett, 18 lakásos társasházban található, a környék infrastruktúrája és közlekedési adottságai pedig optimálisak – a villamos, busz és metró pár perc sétával elérhető.Főbb jellemzők:Alapterület: 41nmKét külön nyíló szoba, jól kihasználhatóJó állapot, folyamatosan karbantartottAz ingatlanhoz saját tároló is tartozikJelenleg rendelőként működik, így akár szolgáltatói tevékenységre, irodának is tovább üzemeltethető, de könnyedén visszaalakítható lakássá isOptimális elhelyezkedés, a belváros és a budai oldal fontos csomópontjai könnyen megközelíthetőkAz ingatlan ideális választás lehet rendelő, iroda, szolgáltató tevékenység céljára, de saját otthonnak vagy befektetésnek is remek lehetőség.
További adatok
Telekterület: -
Kert mérete: -
Erkély mérete: -
Felszereltség: -
Parkolás: -
Kilátás: utcai
Egyéb extrák:  
-
Hirdető adatai
Hirdető neve: Otthon Centrum
Kapcsolattartó: Csányi Tamás
Hirdető telefonszáma: +36 70 716 8266
Honlap: -