Budapest, XVI.kerület
 

Ingatlan adatai
Irányár: 164 900 000 Ft
Típus: ház
Kategória: eladó
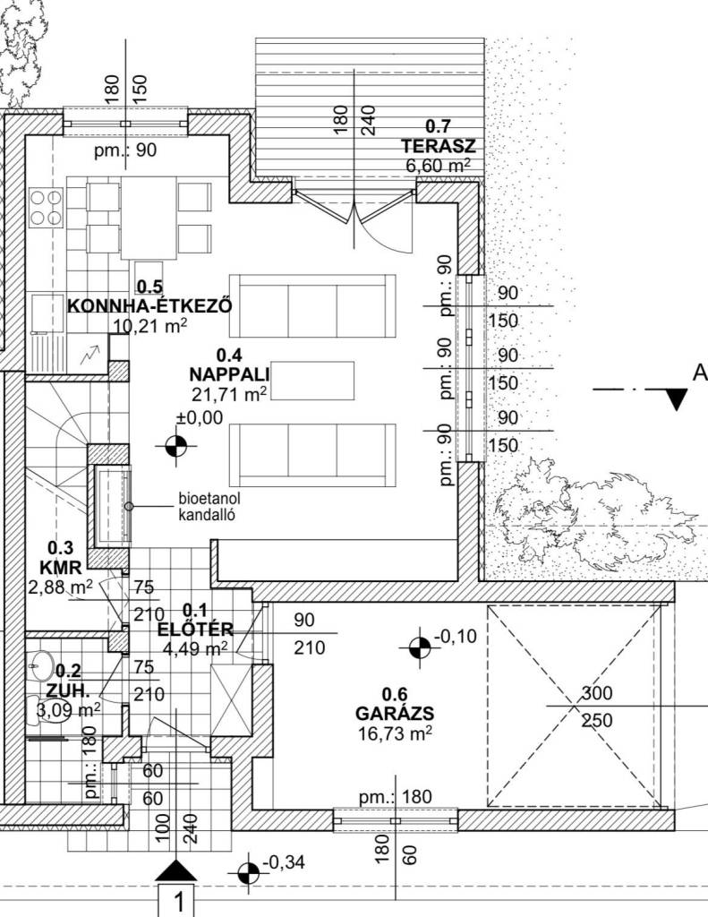
Alapterület: 120 m2
Fűtés: gáz (cirko)
Állapota: új
Szobák száma: 4
Építés éve: 2020
Szintek száma: -
Részletes leírás
Eladó modern, napelemes sorház, szinte nulla rezsivel Mátyásföld legszebb részén – tehermentes, azonnal költözhető!Mátyásföld-Petőfi kertben természetvédelmi övezet mellett, eladó egy 6 éve épült, világos, korszerű, dél-nyugati fekvésű sorházi ingatlan.A 98 nm-es lakótér mellett 17 nm-es fűtött garázs, 5 nm erkély, a földszinten 20 nm-es megnagyított terasz és 241 nm saját kert tartozik hozzá.Tehermentes, azonnal költözhető!Főbb jellemzők:✅ Tágas nappali amerikai konyhával (32 nm) – beépített Whirlpool és Gorenje gépekkel.✅ Összesen nappali+ 3 hálószoba.✅ Beépített szekrények az emeleti szobákban.✅ Két fürdőszoba – az alsó szinten zuhany, az emeleten sarokkád.✅ Modern gépészet – padlófűtés (alsó szint és felső fürdő), radiátoros fűtés, Remeha kazán.✅ Automata redőnyök és rolós/pliszé szúnyoghálók minden hálószobában.✅ 241 nm-es kert – pergolás, 20 nm-es fedett terasz, automata öntözőrendszer.✅ Energiatakarékos megoldások – 5 kW-os napelem rendszer.✅ Daikin hűtő-fűtő klíma.✅ Közművek egyedi mérőórákkal.✅ Biztonság – mozgás- és nyitásérzékelős riasztó.Minőségi anyagokkal épült, háromrétegű üvegezésű nyílászárókkal, Porotherm falazattal és Dryvit szigeteléssel.Megtekintéssel kapcsolatban, várom megtisztelő hívását!Az ingatlan csak referenssel tekinthető meg! A hirdetésben feltüntetett adatok és információk csak tájékoztató jellegűek, jogi kötelezettséggel nem bíró jognyilatkozatnak minősülnek, mely nem tekinthető ajánlat tételnek és nem járnak az eladóra nézve kötelező ajánlati kötöttséggel.
További adatok
Telekterület: 241 m2
Kert mérete: 241 m2
Erkély mérete: 25 m2
Felszereltség: -
Parkolás: -
Kilátás: kertre néző
Egyéb extrák:  
-
Hirdető adatai
Hirdető neve: GDN Ingatlanhálózat
Kapcsolattartó: Mangult András
Hirdető telefonszáma: +36-70-382-8433
Honlap: -