Szabolcs-Szatmár-Bereg megye, Márokpapi
 

Ingatlan adatai
Irányár: 10 900 000 Ft
Típus: ház
Kategória: eladó
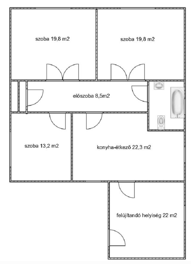
Alapterület: 107 m2
Fűtés: gáz (konvektor)
Állapota: felújítást igényel
Szobák száma: 3
Építés éve: 1980
Szintek száma: -
Részletes leírás
Márokpapiban, egy 107 nm, felújítás alatt lévő ház várja új tulajdonosát. Az ingatlan egy 9918 nm telken helyezkedik el, amely bőséges teret biztosít a kreatív elképzelések megvalósításához, legyen szó akár egy gyönyörű családi otthon kialakításáról, vagy befektetési célú fejlesztésről. A három szobás elrendezés lehetőséget ad arra, hogy tágas, világos életteret alakítson ki, ahol a család minden tagja megtalálhatja a saját helyét. A ház fűtése gázkonvektorral biztosított, ami gazdaságos megoldást nyújt a téli hónapokban. Az ingatlan állapota felújítás alatt lévő, így Önnek lehetősége nyílik arra, hogy saját ízlése szerint alakítsa ki az otthonát, figyelembe véve a modern elvárásokat és a személyes stílusát. Márokpapi csendes utcájában található ingatlan környezete ideális választás családok számára. A helyi szolgáltatások, boltok és iskolák mindössze néhány percnyire találhatóak, így a mindennapi élet kényelmesen és zökkenőmentesen zajlik. Ha felkeltette az érdeklődését, kérem, ne habozzon kapcsolatba lépni velem bármilyen kérdésekkel vagy további információkkal kapcsolatban.
További adatok
Telekterület: 9 918 m2
Kert mérete: 9 918 m2
Erkély mérete: -
Felszereltség: -
Parkolás: -
Kilátás: -
Egyéb extrák:  
-
Hirdető adatai
Hirdető neve: Otthon Centrum
Kapcsolattartó: Gyöngyösi Sándor
Hirdető telefonszáma: +36 70 469 3486
Honlap: -