Zala megye, Balatongyörök
 

Ingatlan adatai
Irányár: 489 000 000 Ft
Típus: nyaraló
Kategória: eladó
Alapterület: 380 m2
Fűtés: -
Állapota: -
Szobák száma: 5
Építés éve: 2018
Szintek száma: -
Részletes leírás
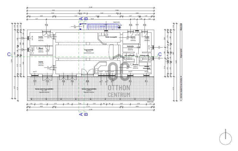
Kiemelt ajánlat az Otthon Centrum Kínálatában!A 348 m2- es nyaraló és a hozzátartozó 100 m2-es terasz magántulajdon a Balatongyöröki strand területén.Jelenleg a felső szinten két apartman erkélyekkel került kialakításra.Egy 100 m2-es és egy 50 m2-es .A 100 m2 -es - ben amerikai konyhás nappali, két hálószoba és két fürdőszoba, valamint Balatoni panorámás erkély van.Az 50 m2-es - ben:Amerikai konyhás nappali egy hálószoba ,egy fürdőszoba és egy Balatoni panorámás erkély van.A földszinten jelenleg egy mindennel felszerelt étterem és pizzéria működik 100 m2-es terasszal és fagylaltozóval.Az ingatlant 20 kw napelem látja el, ehhez csatlakozik két hőszivattyú amikről a fűtés és hűtés klímákkal megoldott.A födém 30 cm- es hőszigeteléssel van ellátva az oldal falakon 10 cm-es szigetelés van.A házba 3x 50 Amper van bekötve.A földszinti étterem is könnyedén nyaralóvá alakítható.A terasz a Balatontól 18 méterre van.Személyesen szívesen megosztom az üzlet jövedelmezőségére vonatkozó adatokat.Kérem hívjon!Ez az ingatlan a \"Felező csomag\" megbízási portfólióhoz tartozik. Részletek az Otthon Centrum weboldalán.
További adatok
Telekterület: 480 m2
Kert mérete: 480 m2
Erkély mérete: 140 m2
Felszereltség: -
Parkolás: -
Kilátás: -
Egyéb extrák:  
-
Hirdető adatai
Hirdető neve: Otthon Centrum
Kapcsolattartó: Fábián László
Hirdető telefonszáma: +36 70 388 6411
Honlap: -