Pest megye, Halásztelek
Halásztelek Családiházas részén 

Ingatlan adatai
Irányár: 134 800 000 Ft
Típus: ház
Kategória: eladó
Alapterület: 240 m2
Fűtés: -
Állapota: -
Szobák száma: 7
Építés éve: -
Szintek száma: -
Részletes leírás
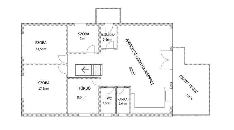
Otthon Start hitelre alkalmas!!Megvételre kínálok egy 240nm-es, 2 szintes, amerikai konyhás-nappali+ 6szobás, 2 fürdős téglaházat, 629nm telken.Rengeteg pozitívum jellemzi ezt a csodás, KIVÁLLÓ ÁLLAPOTÚ OTTHONT!A földszinten:-Előszoba,-3db szoba,-Fürdő,-Wc,-Kamra,-Hatalmas, közel 40nm-es, amerikai konyhás-Nappali 3,2 méteres belmagassággal. Innen jutunk ki a teraszra, ami nemcsak fedett, de 2 oldalról a ház és a garázs határolja, a hátoldalán redőnnyel zárható.Az emeleten:-Kényelmes közlekedő,-3db szoba,-Fürdő,-Wc,-Tároló szoba Itt található a 2022-es, modern, Energiahatékony, kondenzációs Gáz cirkó, víztárolóval.A házban 5 db NORD Hűtő-Fűtő Klíma segíti a rezsicsökkentést,Thermo műanyag nyílászárók, redőnnyel.A vételár része a gépesített konya.3x16 amperA telken -térkővel kirakott autó-beálló-elektromos kapu-Fúrt kút-automata öntöző és csepegtető rendszer-garázs-tároló-beton placc a medencének…….Cégünk INGYENES, iroda és bank-független Hitel ügyintézéssel is rendelkezésére áll, nem csak nálunk vásárolt ingatlanokra!!Kérdés és-vagy időpont egyeztetés miatt hívjon bátran akár hétvégén is.Amennyiben nem tudom felvenni visszahívom
További adatok
Telekterület: 629 m2
Kert mérete: 629 m2
Erkély mérete: 11 m2
Felszereltség: -
Parkolás: -
Kilátás: -
Egyéb extrák:  
-
Hirdető adatai
Hirdető neve: Dream Credit Kft.
Kapcsolattartó: Zsuzsanna Hegedűs
Hirdető telefonszáma: +36707798880
Honlap: -