Pest megye, Dabas
 

Ingatlan adatai
Irányár: 118 800 000 Ft
Típus: ház
Kategória: eladó
Alapterület: 119 m2
Fűtés: gáz (cirko)
Állapota: új
Szobák száma: 5
Építés éve: 2021
Szintek száma: -
Részletes leírás
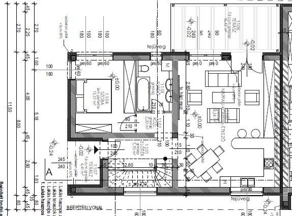
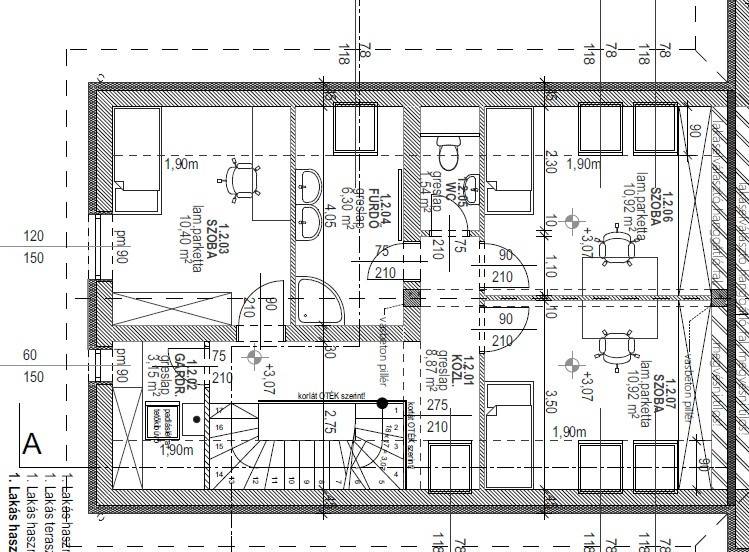
Eladásra kínálunk egy 2021-ben épült, újszerű állapotban lévő, igényes, otthonos családi fészket, Dabas egyik legkedveltebb részén.  A városban pár perces sétára könnyen elérhetőek óvodák, iskolák, egészségügyi intézmények és különböző élelmiszerboltok (Tesco, Lidl, Penny, Aldi).Főbb jellemzők:119 m²-es lakótér: 4 hálószoba, amerikai konyhás nappali, beépített és gépesített konyhával, galéria, kamra.Fürdőszobák: 2 fürdőszoba, lent zuhanyzóval, emeleten fürdőkáddal és zuhanyzóval,  3 wcEnergiaosztály: A++.Fűtés: Háromféle (gázkazán,  hőcserélős indirekt tároló, 5 hűtő-fűtő klíma).Napelemek: 10 db (4 kW),   + 8 kW-os inverterrel, így még bővíthető isKültéri extrák:Két terasz (16,43 m² és 4,4 m²) a pihenéshez.Parkosított kert grillező résszel.15 m²-es mobil műhely tárolóval (az ár tartalmazza).Műszaki adatok:60 cm beton sávalap, 30 cm vastag LEIER teherhordó falak.20 cm hőszigetelés, hőszigetelt, háromrétegű üvegezésű nyílászárók redőnnyel és szúnyoghálóval.
További adatok
Telekterület: 343 m2
Kert mérete: 343 m2
Erkély mérete: -
Felszereltség: -
Parkolás: -
Kilátás: -
Egyéb extrák:  
-
Hirdető adatai
Hirdető neve: Dabas Régió
Kapcsolattartó: Szládikné Kitti
Hirdető telefonszáma: 06204004034
Honlap: -