Budapest, VIII.kerület
 

Ingatlan adatai
Irányár: 83 000 000 Ft
Típus: lakás (tégla)
Kategória: eladó
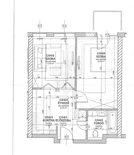
Alapterület: 44 m2
Fűtés: házközponti egyedi méréssel
Állapota: -
Szobák száma: 2
Építés éve: 2016
Szintek száma: -
Részletes leírás
Eladóvá vált egy 44 m2 alapterületű, két szobás lakás a Corvin negyedben, az első emeleten.Ez a lakás 83.000.000 HUF-ért várja új tulajdonosait.Az újszerű állapotú ingatlan ideális választás lehet azok számára, akik befektetést keresnek. Teljes bútorzattal és gépesítve található a lakás.Az ingatlan kellemes, csendes és központi övezetben található, belső zöld udvarral. Befektetési lehetőségek terén is ígéretes, ugyanis a helyszínen még három lakás keresi új lakóját vagy befektetőjét. A lakást csomagban is megveheti, amihez egy parkolóhely és egy tároló is tartozik.A helyi szolgáltatások igen kedvezőek: a Pláza 3 perc sétával, míg a metró és villamosmegálló 5 perc séta távolságra helyezkedik el.
További adatok
Telekterület: -
Kert mérete: -
Erkély mérete: 3 m2
Felszereltség: -
Parkolás: -
Kilátás: udvari
Egyéb extrák:  
-
Hirdető adatai
Hirdető neve: Rock Home
Kapcsolattartó: Németi-Loósz Henriett
Hirdető telefonszáma: +36 70 412 5641
Honlap: -