Budapest, V.kerület
 

Ingatlan adatai
Irányár: 123 500 000 Ft
Típus: lakás (tégla)
Kategória: eladó
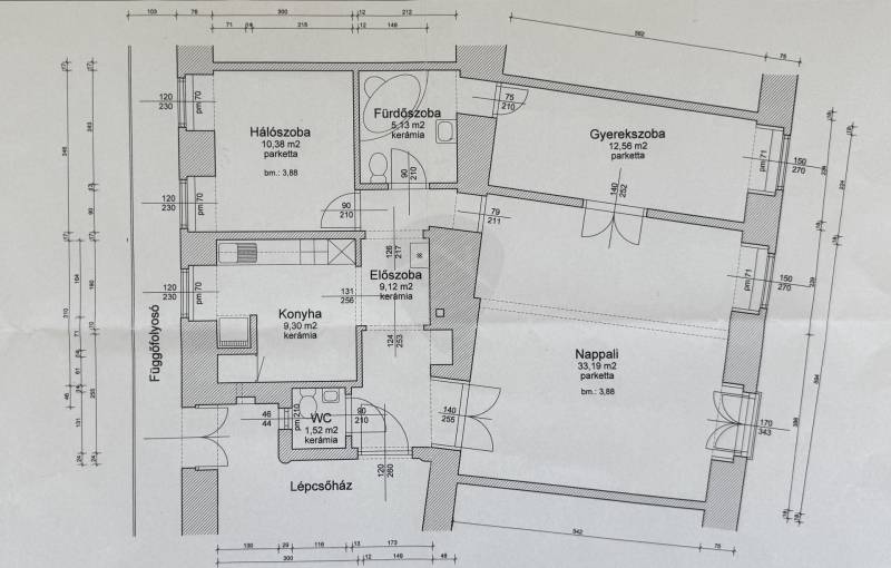
Alapterület: 82 m2
Fűtés: gáz (cirko)
Állapota: -
Szobák száma: 2+1
Építés éve: 1940
Szintek száma: -
Részletes leírás
A családosok,fiatalok,vagy befektetők számára kínáljuk ezt a lakást, amely Budapest 05. kerületében, található. Az ingatlan 82 négyzetméteres alapterülettel rendelkezik,minimális átalakítással 2 külön lakássá alakítható.Az ingatlan tágas,világos,utcai és udvari ablakokkal rendelkezik,de meglepően csendes.A lakásban két szoba és egy félszoba található,közepes állapotú, így lehetőséget ad arra, hogy saját ízlésének megfelelően alakítsa ki otthonát,de akár festés után akár azonnal költözhető.A fűtés gáz (cirkó) rendszerű, ami gazdaságos és kényelmes megoldást jelent. A parkolás sem okoz gondot, hiszen udvari beálló rendelkezésre áll.A környék ellátottsága kiváló.Az ingatlan értéke csak növekszik.Ez a tehermentes ingatlan a belvárosi lakások között egyedülálló lehetőséget kínál, amely nemcsak otthonnak, hanem befektetési célra is kiváló,albérleti kiadásra is tökéletes. Ha felkeltette érdeklődését, ne habozzon, keressen bizalommal,rugalmasan,azonnal megtekinthető.
További adatok
Telekterület: -
Kert mérete: -
Erkély mérete: -
Felszereltség: -
Parkolás: -
Kilátás: udvari
Egyéb extrák:  
-
Hirdető adatai
Hirdető neve: Rock Home
Kapcsolattartó: Borsos Balázs
Hirdető telefonszáma: +36 70 467 6795
Honlap: -