Budapest, VI.kerület
 

Ingatlan adatai
Irányár: 79 000 000 Ft
Típus: lakás (tégla)
Kategória: eladó
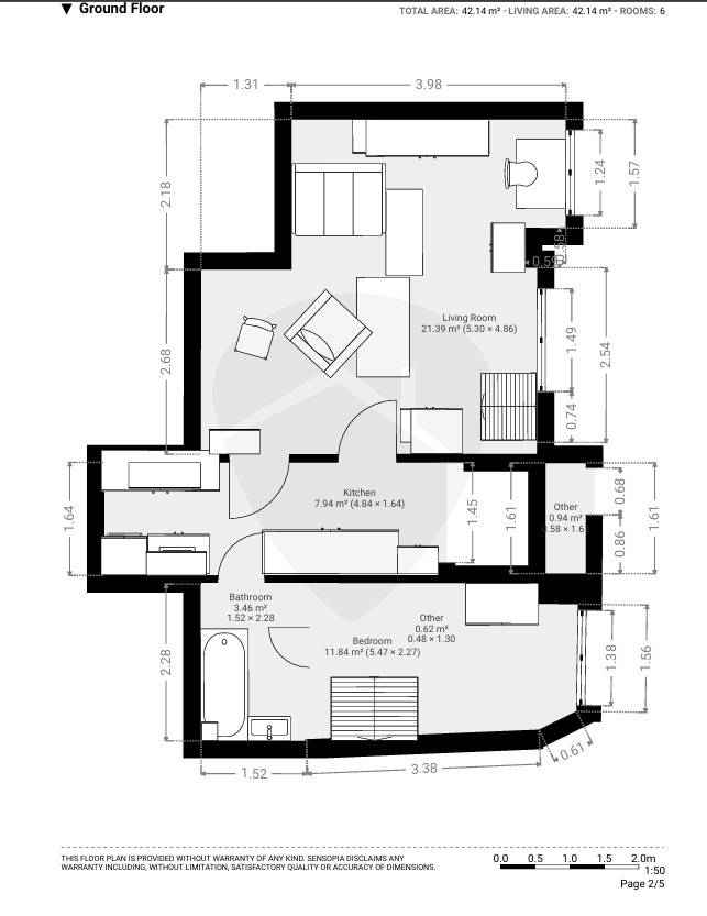
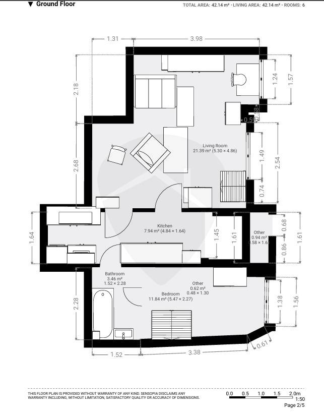
Alapterület: 52 m2
Fűtés: gáz (konvektor)
Állapota: -
Szobák száma: 1+1
Építés éve: 1920
Szintek száma: -
Részletes leírás
Befektetés vagy Otthon?! Döntsd el TE!!Ha fiatal felnőttként keresel egy olyan ingatlant, ami nemcsak hogy a város szívében helyezkedik el, de a mindennapjaid kényelmét is maximálisan szolgálja, akkor ez a lehetőség neked szól! A Belső VI. kerületben, a népszerű Nagymező utcában található ez a 36 nm-es, jó állapotú lakás, amely tökéletes választás lehet első otthonodnak vagy akár befektetési céllal is..Tulajdoni lap szerint 36 m2 de 2 teljesértékű állógaléria ( 10 m2 + 8 m2 ) kialakítása jelentősen növelte a hasznos alapterületet. A lakás gépesített, így a mindennapi élethez szükséges alapvető eszközök már adottak, így csak a személyes stílusodat kell hozzáadnod. Egyedi belső térrel rendelkezik, ugyanis a nappali is állógalériával rendelkezik, ami ideális dolgozószobának illetve egy privát galéria is kialakításra került ami hálószobaként funkcionálhat.A környék vibráló élete és kulturális gazdagsága miatt nemcsak lakóhely, hanem életstílus is vár rád. A közeli Andrássy úton, a híres operánál és a szórakozóhelyeknél mindig történik valami izgalmas, így sosem fogsz unatkozni. A Belső VI. kerület a biztonságos és csendes otthonok mellett a fiatalok kedvenc találkozóhelye is, hiszen a kávézók, éttermek és bárok csak egy karnyújtásnyira találhatóak.
További adatok
Telekterület: -
Kert mérete: -
Erkély mérete: -
Felszereltség: -
Parkolás: -
Kilátás: udvari
Egyéb extrák:  
-
Hirdető adatai
Hirdető neve: Rock Home
Kapcsolattartó: Takács Claudia
Hirdető telefonszáma: +36 70 467 6681
Honlap: -